Vestil HDD-36-10-P-SSC handleiding
Handleiding
Je bekijkt pagina 5 van 25

Table of Contents 5/14/2020 HDD, MANUAL
Table of Contents Copyright 2019 Vestil Manufacturing Co. 5 of 25
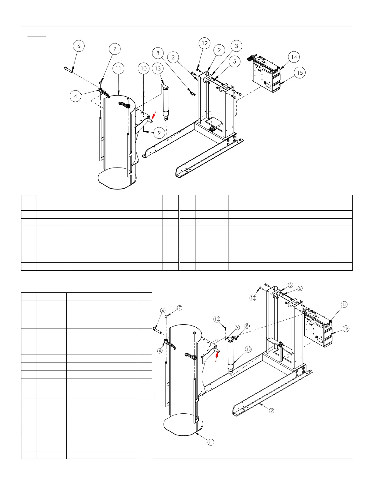
FIG. 1: HDD-36-S series stationary dumpers exploded view and bill of materials
Item
Part no.
Description
Qty.
Item
Part no.
Description
Qty.
1
99-002-122
Final assembly without power unit
1
9
36102
Hex nut, grade A, zinc-plated,
1
/
4
” - 20
1
2
09-514-131
Weldment, frame, stationary
1
10
22805
Elevator bolt, limit switch
1
3
09-512-001
Hinge block assembly
2
11
09-545-028
Weldment, subassembly, chute
1
4
09-537-013
Assembly, drum clamp, casting
2
12
12365
3
/
4
” – 10UNC x 3” zinc-plated #5 bolt
4
5 37039 Nylock nut, zinc-plated,
3
/
4
” – 10 4 13
99-021-909-
001
Hydraulic cylinder, 2
1
/
2
” x 18” 1
6
24-612-003
Pin assembly, cylinder
1
14
99-160-097
Modular power unit, GEN2 (display only)
1
7
09-145-020
Threaded pipe cap
2
15
31802
Screw, self-tapping screw
2
8
01-022-021
Switch, limit, roller arm
1
Item
Part no.
Description
Qty.
1 99-002-123
Final assembly without
power unit
1
2
09-514-129
Weldment, frame, stationary
1
3
09-512-001
Hinge block assembly
2
4 09-537-013
Assembly, drum clamp,
casting
2
5 37039
Nylock nut, zinc-plated,
3
/
4
”
– 10
4
6
24-612-003
Pin assembly, cylinder
1
7
09-145-020
Threaded pipe cap
2
8
01-022-021
Switch, limit, roller arm
1
9 36102
Hex nut, grade A, zinc-
plated,
1
/
4
” - 20
1
10
22805
Elevator bolt, limit switch
1
11 09-545-030
Weldment, subassembly,
chute
1
12 13365
3
/
4
” – 10UNC x 3” zinc-
plated #5 bolt
4
13
99-021-
909-001
Hydraulic cylinder, 2
1
/
2
” x
18”
1
14 99-160-097
Modular power unit, GEN2
(display only)
1
15
31802
Screw, self-tapping screw
2
FIG. 2: HDD-48-S series stationary dumpers exploded view and bill of materials
Pivot
shaft
Pivot
shaft
Bekijk gratis de handleiding van Vestil HDD-36-10-P-SSC, stel vragen en lees de antwoorden op veelvoorkomende problemen, of gebruik onze assistent om sneller informatie in de handleiding te vinden of uitleg te krijgen over specifieke functies.
Productinformatie
Merk | Vestil |
Model | HDD-36-10-P-SSC |
Categorie | Niet gecategoriseerd |
Taal | Nederlands |
Grootte | 6250 MB |