Vestil EHLTG-3850-4-36-PSS handleiding
Handleiding
Je bekijkt pagina 8 van 12

ELECTRICAL PARTS
01-135-XXX
LCI-D1810-24V
01-129-001
AGC 2
01-029-006
T-91-S/522-B12
99-034-008
01-033-017
01-033-015
01-022-001
01-033-009
159/D
01-022-022
HYDRAULIC PARTS
99-153-006
99-153-015
99-153-011
99-153-040
99-021-XXX
99-136-XXX
99-127-001
01-143-XXX
DPS-40-N06
01-031-005
HO 150
DESCRIPTION
Motor; varies by customer spec; contact factory
Motor contactor, 30A, w/ 24 VAC coil
Transformer, control; w/ 24 VAC secondary
Fuse, for control circuit
Control enclosure, 6” W x 6” L x 4” D
Twin foot switch control on 8’ cord
Solenoid cord, 24 VAC
Connector cord, for solenoid coil
Cord, power, 14/3, 9’ long, w/ NEMA 5-15 plug (115V units)
Limit switch, roller-arm (N.C.)
Cable, 18/2 coil cord, 18” - 90” (to toe guard switch
Multi-pole terminal strip
Toe guard switch
Valve, relief, 210 bar
Valve, solenoid, N.C.
Valve, check
Flow control spool, 2 gpm
Cylinder, displacement; varies by model; contact factory
Cylinder seal kit; varies by model; contact factory
Manifold, lift-hold-lower
Pump, hydraulic; varies by model; contact factory Breather
plug
Fitting, intake screen
Hydraulic fluid (gallons)
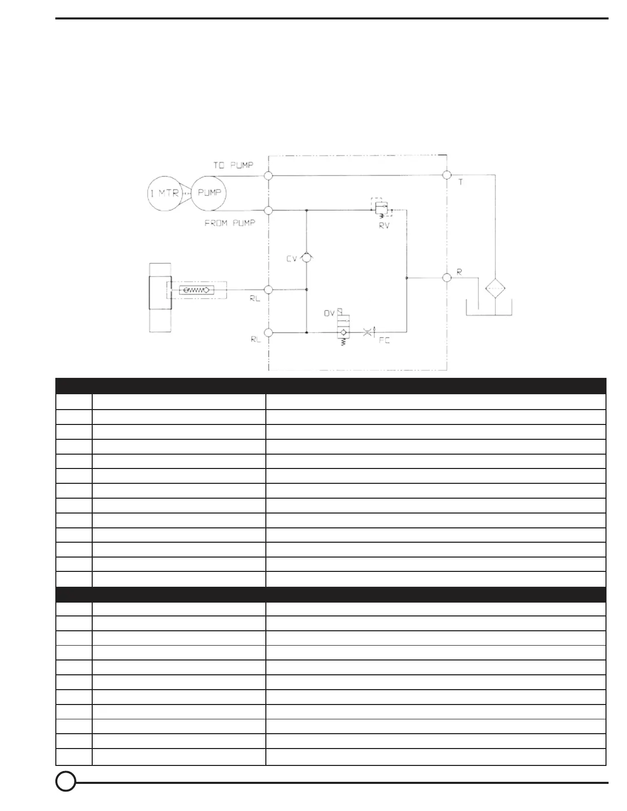
HYDRAULIC DIAGRAM - LIFT-HOLD-LOWER CIRCUITS
•
Warning: Care should be taken to identify all potential hazards and comply with applicable safety procedures before be-
ginning work. Fully lower or secure the platform, and ensure that all system pressure and power have been removed,
before attempting to work on the electrical or hydraulic systems.
•
Raise the lift and install the maintenance props before beginning any inspections or work on the unit.
•
Only qualified individuals trained to understand mechanical devices and their associated electrical and hydraulic
circuits should attempt troubleshooting and repair of this equipment
•
Caution:
Do not use brake fluid or jack oils in the hydraulic system. If oil is needed, use an anti-wear hydraulic oil
with a viscosity of 150 SUS at 100°F (ISO 32 @ 40°C), or non-synthetic transmission fluid.
QTY
1
1
1
1
1
1
1
1
1
1
1
2
1
1
1
1
1
2
2
1
1
1
1
1½
8
Bekijk gratis de handleiding van Vestil EHLTG-3850-4-36-PSS, stel vragen en lees de antwoorden op veelvoorkomende problemen, of gebruik onze assistent om sneller informatie in de handleiding te vinden of uitleg te krijgen over specifieke functies.
Productinformatie
Merk | Vestil |
Model | EHLTG-3850-4-36-PSS |
Categorie | Niet gecategoriseerd |
Taal | Nederlands |
Grootte | 2776 MB |