Vestil DKL-5 handleiding

10 pagina's
PDF beschikbaar

Handleiding

Je bekijkt pagina 5 van 10
Table of Contents Rev. 2/4/2021 DKL, MANUAL.doc
Table of Contents Copyright 2021 Vestil Manufacturing Corp. Page 5 of 10
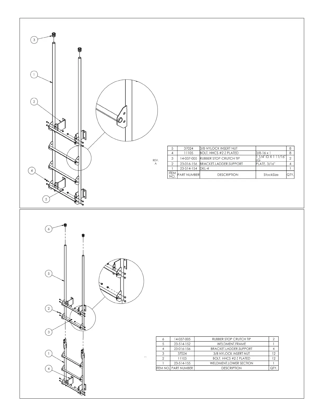
EXPLODED VIEW AND BILL OF MATERIALS: DKL-4
EXPLODED VIEW AND BILL OF MATERIALS: DKL-5

Bekijk gratis de handleiding van Vestil DKL-5, stel vragen en lees de antwoorden op veelvoorkomende problemen, of gebruik onze assistent om sneller informatie in de handleiding te vinden of uitleg te krijgen over specifieke functies.

Productinformatie

MerkVestil
ModelDKL-5
CategorieLadder
TaalNederlands
Grootte2260 MB