Vestil CRP-144 handleiding
Handleiding
Je bekijkt pagina 3 van 6

Table of Contents Rev. 7/7/2023 CRP, MANUAL
Table of Contents Copyright 2023 Vestil Manufacturing Co. Page 3 of 6
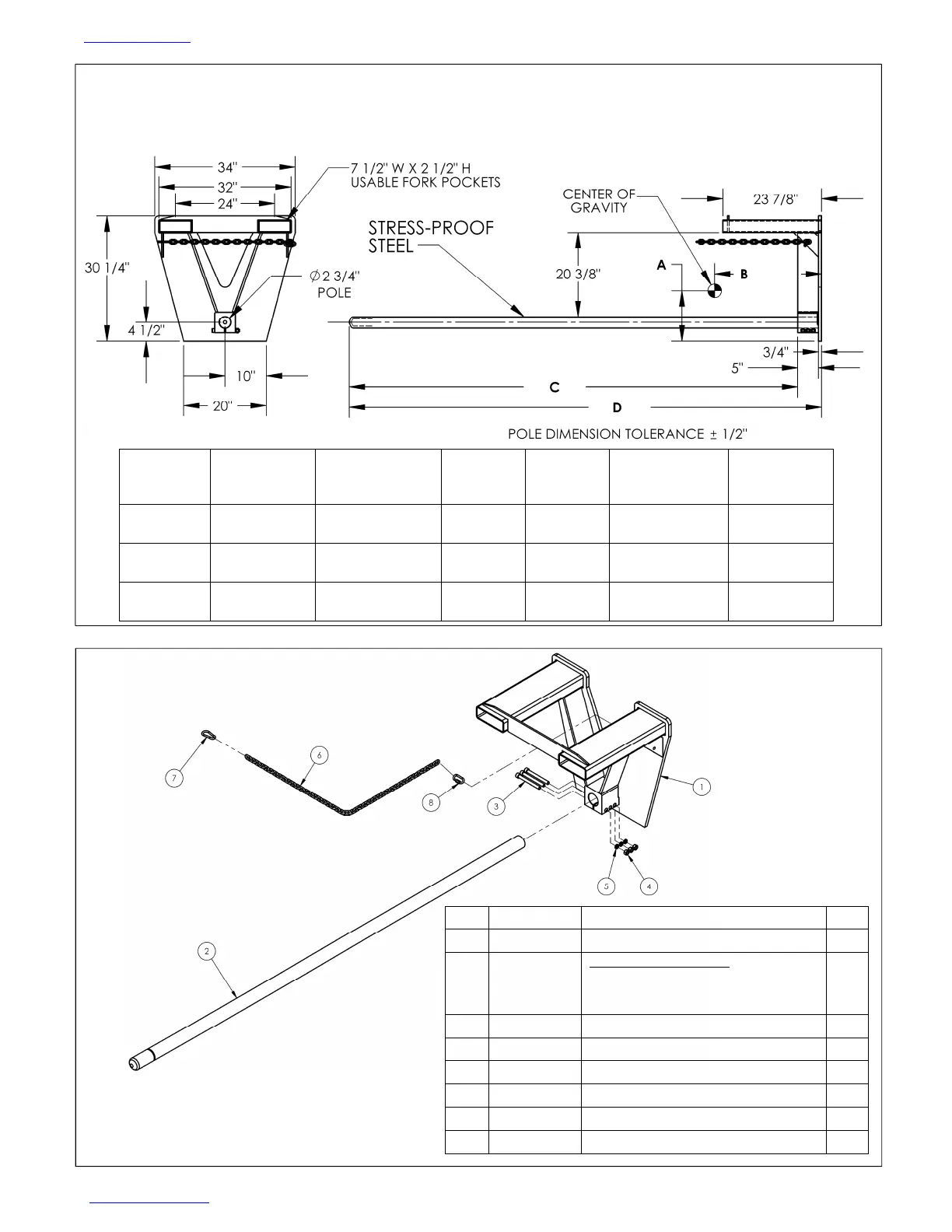
SPECIFICATIONS
Dimensions, net weight (lost load), and uniform capacity of each CCF-series coil carrier are
provided in the following diagrams and table.
Model
A
(Vertical center
of gravity)
B
(Horizontal center
of gravity)
C
D
Uniform
Capacity
Net Weight
(Lost Load)
CRP-108
12
1
/
8
”
30.8 cm
25
13
/
16
”
65.6 cm
108
1
/
2
”
275.6 cm
114
1
/
4
”
290.2 cm
2,500 lb.
(1,136.4 kg)
463 lb.
(210.5 kg)
CRP-120
11
13
/
16
”
30.0 cm
29
3
/
4
”
75.6 cm
120
1
/
2
”
306.1 cm
126
1
/
4
”
320.7 cm
2,200 lb.
(1,000 kg)
483 lb.
(219.5 kg)
CRP-144
11
1
/
4
”
28.6 cm
38”
96.5 cm
144
1
/
2
”
367.0 cm
150
1
/
4
”
381.6 cm
1,800 lb.
(818.2 kg)
523 lb.
(237.7 kg)
Item Part no. Description Qty.
1 08-514-095 Weldment, frame, back plate 1
2
08-514-092
08-514-093
08-514-094
Weldment, frame, pole:
CRP-108
CRP-120
CRP-144
1
1
1
3 23525
5
/
8
” – 11 x 6”, gr. 8, SCHS bolt 3
4 36414
5
/
8
” – 11, gr. 8, UNC hex nut 3
5 33692
5
/
8
” high collar lock washer 3
6 09-145-018
5
/
16
” safety chain, 56” long 1
7 08-145-041
5
/
16
” snap hook 1
8 99-145-053
5
/
16
” quick link 1
EXPLODED VIEW AND BILL OF
MATERIALS
08
-
006
-
055
Bekijk gratis de handleiding van Vestil CRP-144, stel vragen en lees de antwoorden op veelvoorkomende problemen, of gebruik onze assistent om sneller informatie in de handleiding te vinden of uitleg te krijgen over specifieke functies.
Productinformatie
Merk | Vestil |
Model | CRP-144 |
Categorie | Niet gecategoriseerd |
Taal | Nederlands |
Grootte | 1452 MB |