Vestil CART-600-S-FR handleiding

19 pagina's
PDF beschikbaar

Handleiding

Je bekijkt pagina 15 van 19
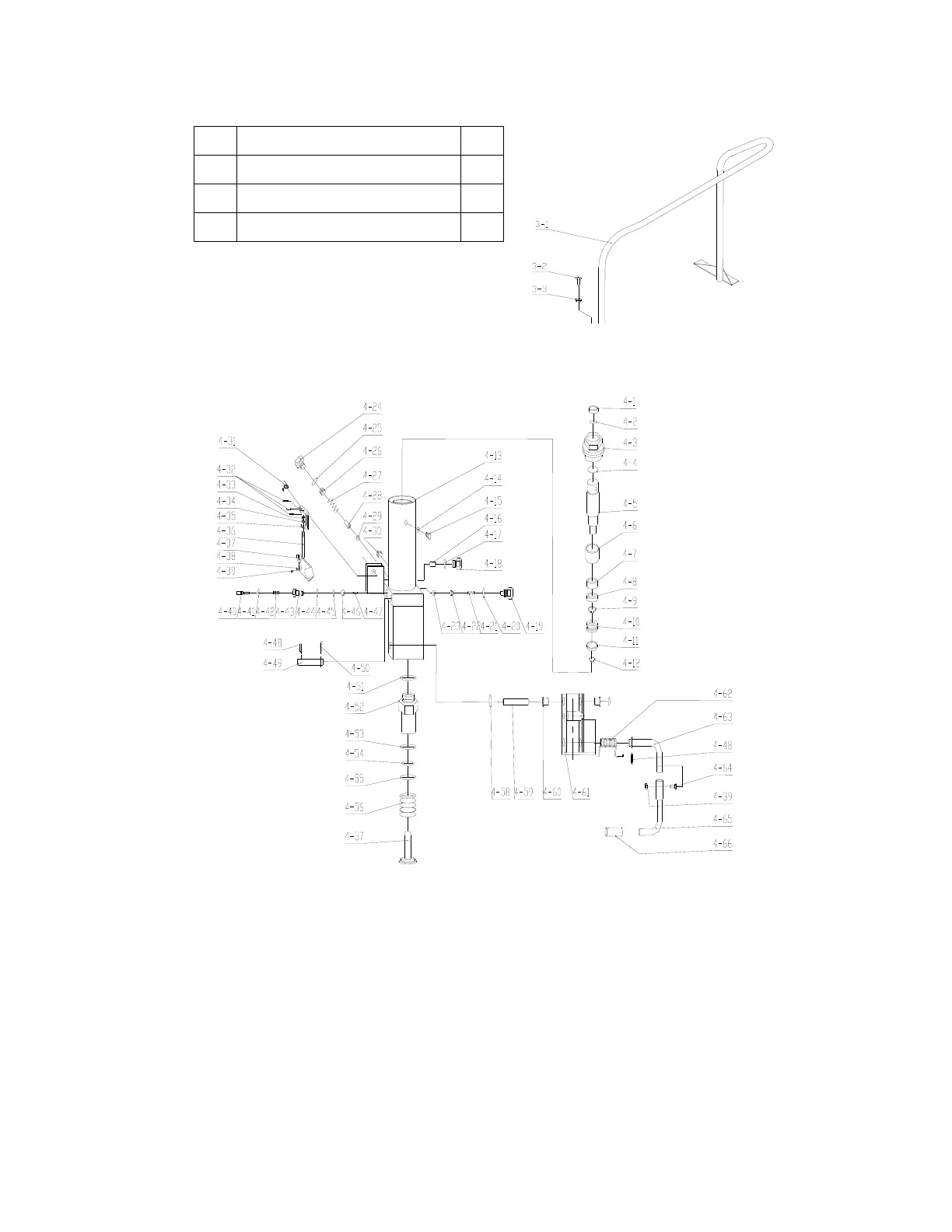
Handle assembly:
REF PART DESCRIPTION QTY
3-1 Handle assy. 1
3-2 Hexagon head bolt M10×25 2
3-3 Self-locking nut M10 2
Note: Items 3-1 to 3-3 available
only as complete kit;
Pump Unit:

Bekijk gratis de handleiding van Vestil CART-600-S-FR, stel vragen en lees de antwoorden op veelvoorkomende problemen, of gebruik onze assistent om sneller informatie in de handleiding te vinden of uitleg te krijgen over specifieke functies.

Productinformatie

MerkVestil
ModelCART-600-S-FR
CategorieNiet gecategoriseerd
TaalNederlands
Grootte1633 MB