Vestil ALLW-2020-FW handleiding
Handleiding
Je bekijkt pagina 2 van 21

Table of Contents Rev. 10/2/2020 LLW MANUAL
Table of Contents Copyright 2020 Vestil Manufacturing Co. Page 2 of 21
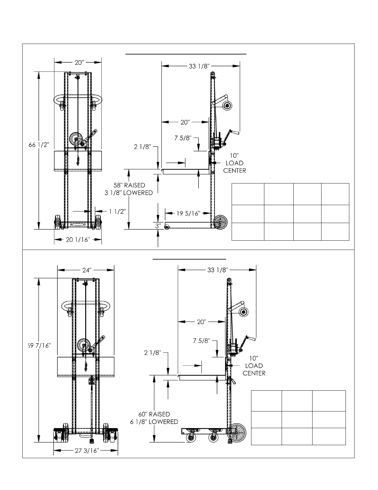
SPECIFICATIONS
Dimensions, net weight, and capacity information for standard models appear in the diagrams and tables.
MODEL
LLW-
242060-
4SFL
ALLW-
2420-4SFL
Net
weight
192 lb.
87.0 kg
127 lb.
57.7 kg
Capacity
500 lb.
227.3 kg
400 lb.
181.8 kg
MODEL
LLW-
202058-
FW
ALLW-
2020-
FW
ALL-
2020-
FWFL
Net
weight
131 lb.
59.3 kg
84 lb.
38.2 kg
86 lb.
39.1kg
Capacity
500 lb.
227.3 kg
400 lb.
181.8 kg
400 lb.
181.8 kg
10”
LLW-FW; ALLW-FW; & ALLW-2020-FWFL
LLW-4SFL & ALLW-4SFL
Bekijk gratis de handleiding van Vestil ALLW-2020-FW, stel vragen en lees de antwoorden op veelvoorkomende problemen, of gebruik onze assistent om sneller informatie in de handleiding te vinden of uitleg te krijgen over specifieke functies.
Productinformatie
Merk | Vestil |
Model | ALLW-2020-FW |
Categorie | Niet gecategoriseerd |
Taal | Nederlands |
Grootte | 5695 MB |