Handleiding
Je bekijkt pagina 68 van 84

68
DE
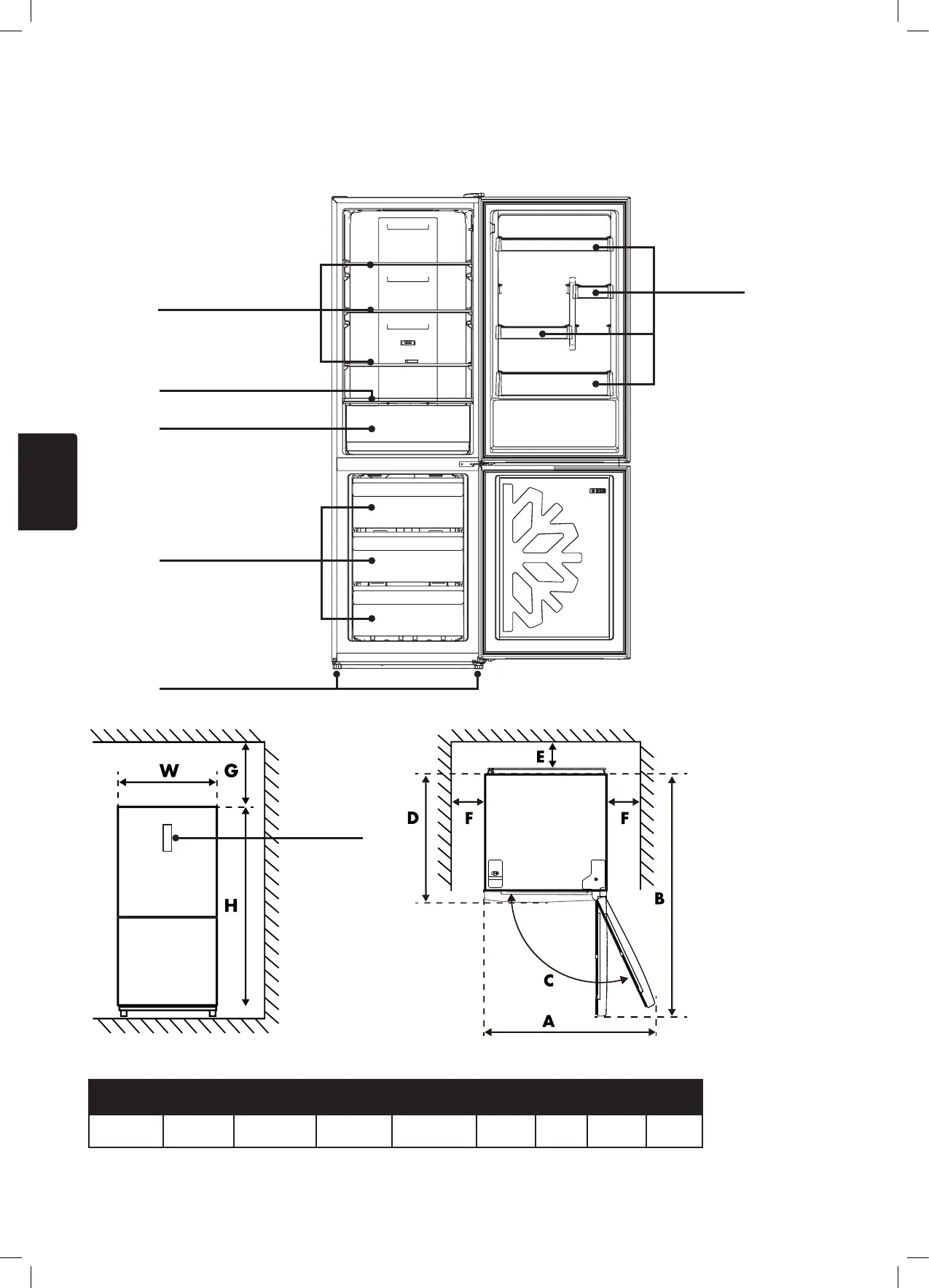
• Abbildung 1: Vorderansicht • Abbildung 2: Draufsicht
1 und Abbildung 2 veranschaulichen lediglich den für das Gerät benötigten Platz.
2. PRODUKTEIGENSCHAFTEN
2.1 MAßE
Türfächer
Ablagen Kühlschrank
Gemüseschublade
Deckel Gemüseschublade
Gefrierschrank-
Schubladen
Stellfüße
Display
W D H A B C(°) E F G
59,5cm 63,5cm 186,5cm 96,6cm 120,2cm 130 5cm 10cm 3cm
Bekijk gratis de handleiding van Veripart VPKVC185CNFZ, stel vragen en lees de antwoorden op veelvoorkomende problemen, of gebruik onze assistent om sneller informatie in de handleiding te vinden of uitleg te krijgen over specifieke functies.
Productinformatie
| Merk | Veripart |
| Model | VPKVC185CNFZ |
| Categorie | Vriezer |
| Taal | Nederlands |
| Grootte | 9063 MB |




