Handleiding
Je bekijkt pagina 28 van 84

28
EN
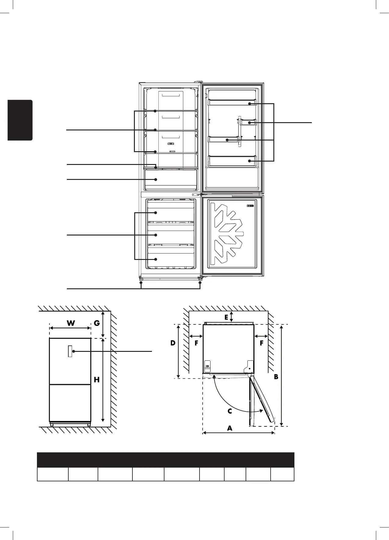
2. PRODUCT FEATURES
2.1 DIMENSIONS
• Figure 1: Front view • Figure 2: Top view
Figures 1 and 2 only illustrate the space required for the appliance.
Door
compartments
Fridge shelves
Crisper drawer
Crisper drawer cover
Freezer drawers
Adjustable legs
Display
W D H A B C(°) E F G
59,5cm 63,5cm 186,5cm 96,6cm 120,2cm 130 5cm 10cm 3cm
Bekijk gratis de handleiding van Veripart VPKVC185CNFZ, stel vragen en lees de antwoorden op veelvoorkomende problemen, of gebruik onze assistent om sneller informatie in de handleiding te vinden of uitleg te krijgen over specifieke functies.
Productinformatie
| Merk | Veripart |
| Model | VPKVC185CNFZ |
| Categorie | Vriezer |
| Taal | Nederlands |
| Grootte | 9063 MB |




