Handleiding
Je bekijkt pagina 60 van 72

60
DE
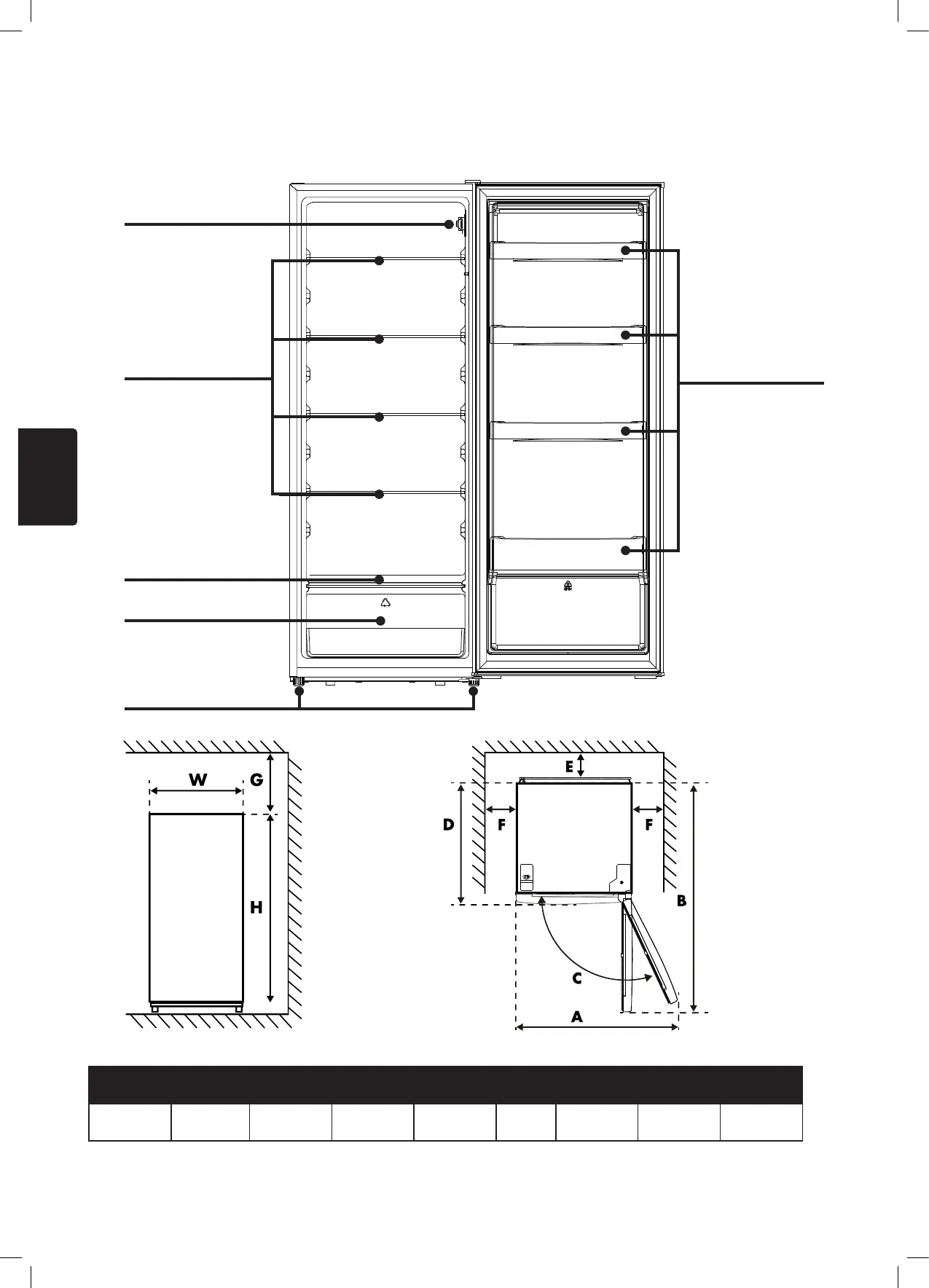
2. PRODUKTMERKMALE
2.1. MAßE
• Abbildung 1. Vorderansicht • Abbildung 2. Draufsicht
*Abbildung 1 und 2 veranschaulichen lediglich den für das Gerät benötigten Platz.
Thermostatknopf
Türfächer
W D H A B C(°) E F G
54,4cm 55,6cm 142,6cm 80 cm 114,5cm 135 min. 5cm min. 5cm min. 10cm
Deckel der
Gemüseschublade
Gemüseschublade
Einstellbare Füße
Ablagen im
Kühlschrank
Bekijk gratis de handleiding van Veripart VPKK143EW, stel vragen en lees de antwoorden op veelvoorkomende problemen, of gebruik onze assistent om sneller informatie in de handleiding te vinden of uitleg te krijgen over specifieke functies.
Productinformatie
| Merk | Veripart |
| Model | VPKK143EW |
| Categorie | Koelkast |
| Taal | Nederlands |
| Grootte | 6931 MB |







