Handleiding
Je bekijkt pagina 9 van 84

8
NL
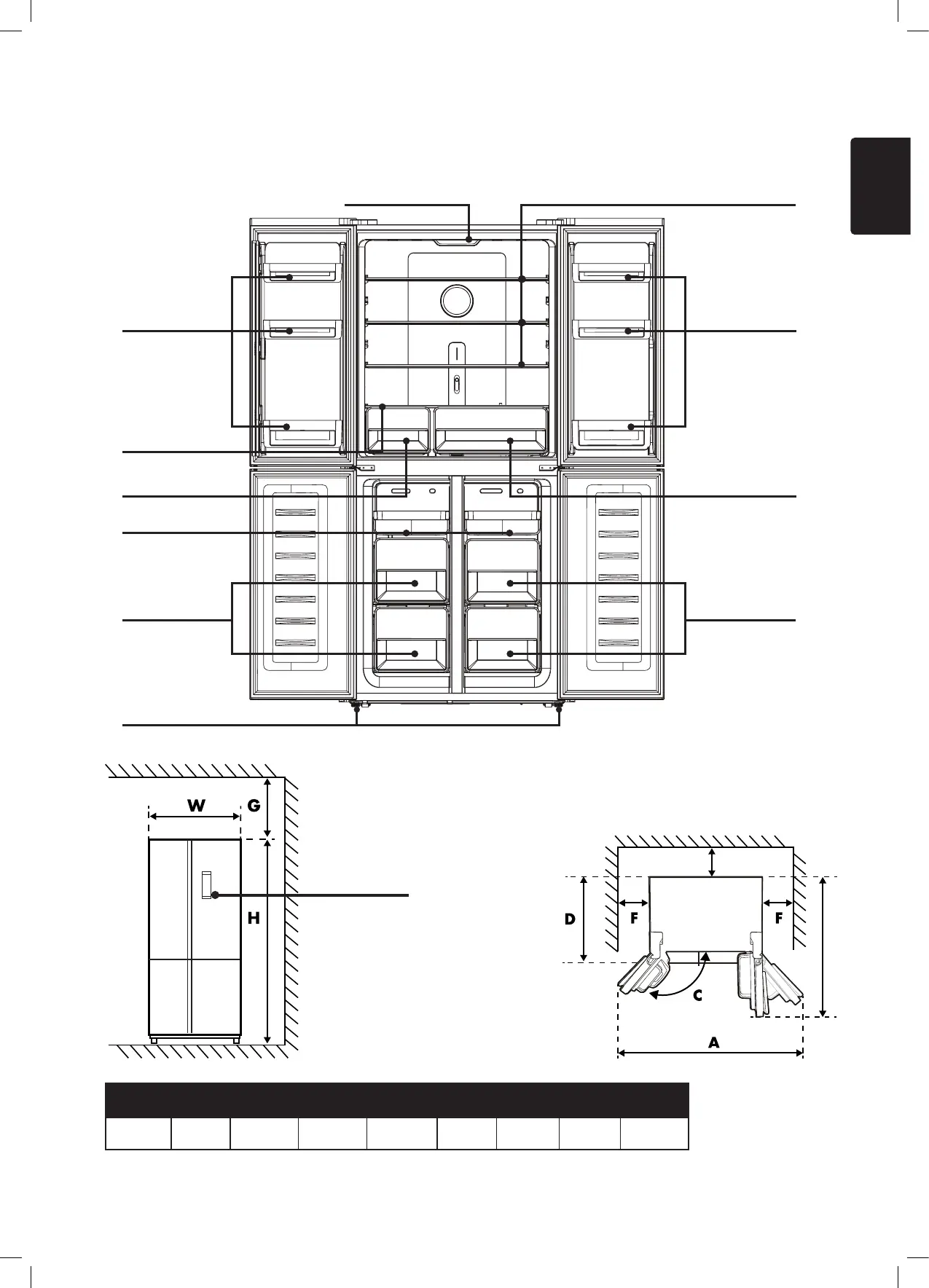
DeurvakkenDeurvakken
LED lamp
2. PRODUCTEIGENSCHAPPEN
Vrieslades
Vrieslades
Deksel groentelade
Verse zone Groentelade
2.1 AFMETINGEN
B
E
W D H A B C(°) E F G
79cm 70cm 180cm 158cm 149cm 135o ≥5cm ≥5cm ≥5cm
Figuur 1 en guur 2 illustreren enkel de ruimte die nodig is voor het toestel.
Figuur 1: Vooraanzicht
Figuur 2: Bovenaanzicht
Koelkast planken
Stelpoten
Schuiades
Display
Bekijk gratis de handleiding van Veripart VDND421DZ, stel vragen en lees de antwoorden op veelvoorkomende problemen, of gebruik onze assistent om sneller informatie in de handleiding te vinden of uitleg te krijgen over specifieke functies.
Productinformatie
Merk | Veripart |
Model | VDND421DZ |
Categorie | Koelkast |
Taal | Nederlands |
Grootte | 6843 MB |