Handleiding
Je bekijkt pagina 34 van 44

12
3. BRANCHEMENT
Le branchement électrique doit être effectué par du personnel qualifi é conformément aux codes et aux
standards en vigueur. Avant d’effectuer un branchement, débrancher l’appareil ou couper l’alimentation
électrique au panneau de distribution et le verrouiller pour éviter une mise en marche accidentelle. Le fait
de ne pas débrancher l’appareil pourrait résulter en un choc électrique ou endommager la commande murale
ou le module électronique dans l’appareil. Toujours porter des lunettes et des gants de sécurité lors de
l’exécution de ces instructions.
AVERTISSEMENT
!
Si les conduits doivent passer par un espace non tempéré (ex. : grenier), toujours utiliser des conduits isolés
pour éviter que de la condensation se forme à l’intérieur ou à l’extérieur du conduit, ce qui pourrait causer
des dégâts matériels et/ou la prolifération de moisissure. De plus, si le conduit de distribution d’air frais et/
ou le conduit d’aspiration d’air vicié passe(nt) par un espace non tempéré, l’appareil doit être réglé pour
fonctionner de façon continue par temps froid (sous 10°C/50°F). Un mouvement d’air continu à l’intérieur
des conduits évitera la formation de condensation. L’appareil peut être arrêté temporairement à des fi ns
d’entretien et/ou de réparation dans de telles conditions. (Se référer à la section 2.4 pour plus de détails.)
ATTENTION
Ne jamais installer plus d’une commande murale principale par appareil. S’assurer qu’il n’y a aucun court-
circuit entre les fi ls ou entre les fi ls et une autre composante de la commande murale. Éviter les connexions
relâchées. Afi n de diminuer les risques potentiels d’interférence électrique (parasites), ne pas faire cheminer
le fi l de la commande murale près des contacteurs de contrôle ou près de circuits gradateur d’éclairage,
moteurs électriques, câblage électrique de la maison ou panneau de distribution de courant.
ATTENTION
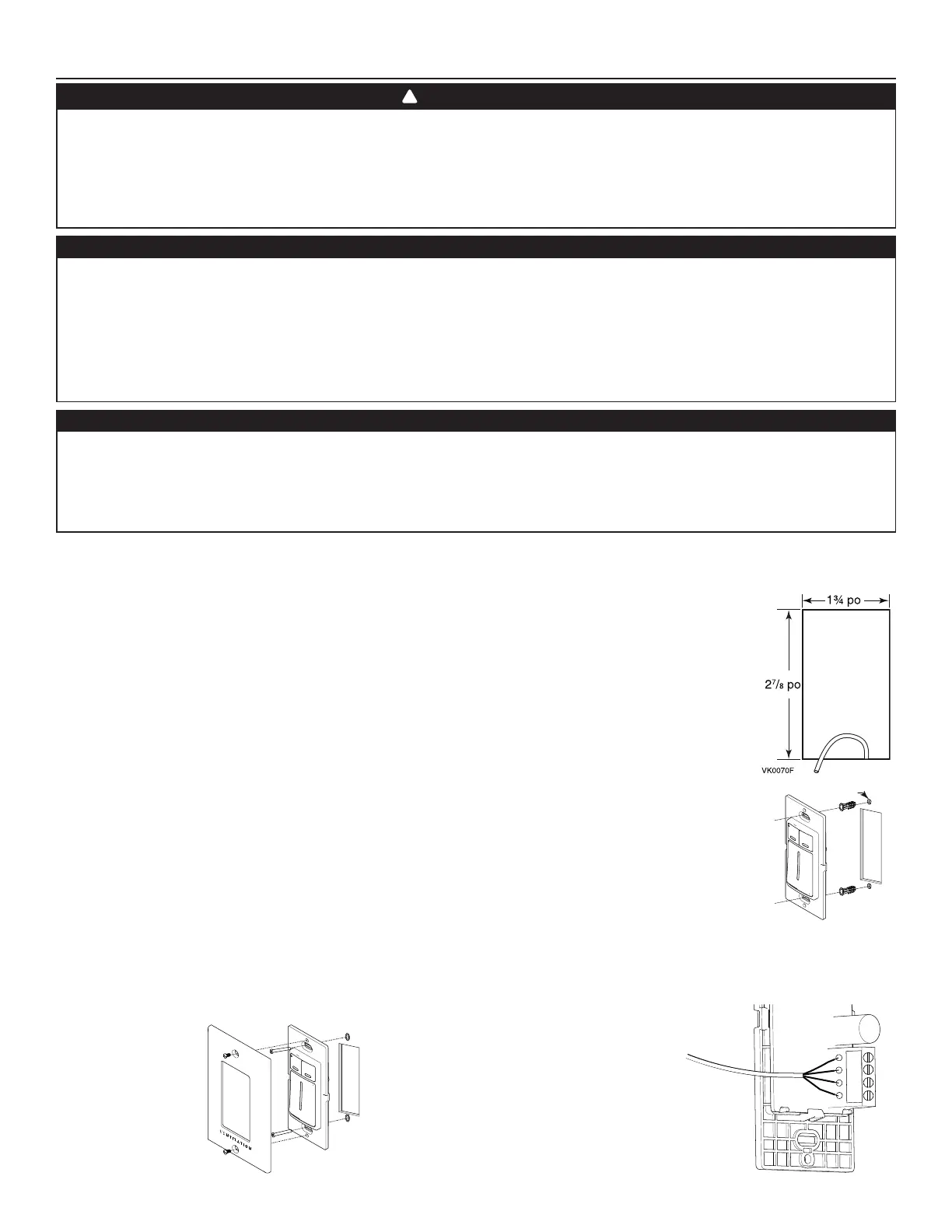
3.1 INSTALLATION DE LA COMMANDE MURALE PRINCIPALE AUTOMATIQUE
Découper un trou de 2
7
/8 po x 1¾ po dans un mur, à un endroit pratique pour
l’emplacement de la commande. À partir de l’appareil, acheminer le câble de 40 pi (type
22/4) inclus pour la commande jusqu’à ce trou. Voir ci-contre.
Placer la commande temporairement au-dessus du trou et marquer la position des deux
trous pour les vis de montage.
Retirer la commande, percer les deux trous (3/16 po Ø) des vis dans le mur et y insérer
les douilles à expansion (incluses).
Ø 3/16 po, typ.
VC0213F
Débrancher l’appareil de ventilation.
VC0214
Assembler la
commande au
mur en utilisant
les vis incluses.
Gnd
D+
12V
D-
Dégainer l’extrémité du câble pour accéder aux 4 fi ls (environ 3 po). Dénuder le bout de chaque fi l (environ
1/4 po). Utiliser les vis pour connecter les fi ls aux bornes, sans tenir compte de la couleur des fi ls ou en
suivant la note ci-dessous. Pour chaque borne, prendre en note la couleur de fi l choisie. Tirer légèrement sur
chaque fi l pour s’assurer qu’ils sont bien connectés.
NOTE : Si la commande sera installée dans un boîtier électrique, passer à l’étape .
NOTE : Nous suggérons l’utilisation des
couleurs de fil suivantes pour chaque borne :
Fil rouge pour la borne ‘‘12 V’’,
jaune pour ‘‘D-’’,
vert pour ‘‘D+’’ et
noir pour ‘‘Gnd’’.
.
Bekijk gratis de handleiding van Venmar HRV110, stel vragen en lees de antwoorden op veelvoorkomende problemen, of gebruik onze assistent om sneller informatie in de handleiding te vinden of uitleg te krijgen over specifieke functies.
Productinformatie
| Merk | Venmar |
| Model | HRV110 |
| Categorie | Airco |
| Taal | Nederlands |
| Grootte | 5800 MB |


