Velleman LABPS3003 handleiding
Handleiding
Je bekijkt pagina 19 van 26

LABPS3003
V. 01 – 04/09/2014 19 ©Velleman nv
3 Sintonia fina C.C. interruptor rotativo para a
sintonia fina do ponto limitador de corrente.
9 interruptor: botão de pressão usado para
ligar/desligar o aparelho. O aparelho está ON
(ligado) sempre que o LED C.C. (7) ou o LED
C.V. (8) acender.
4 ajuste C.C.: interruptor rotativo para ajuste do
ponto limitador de corrente.
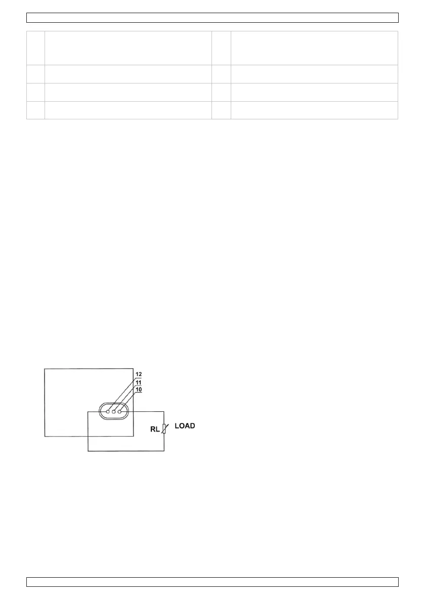
10 terminal de saída (+): usado para fazer a
ligação ao terminal positivo da carga.
5 ajuste C.V. interruptor rotativo para ajuste da
voltagem de saída.
11 ligação à terra da caixa: a caixa está ligada à
terra.
6 sintonia fina C.V. interruptor rotativo para a
sintonia fina da voltagem de saída.
12 terminal de saída (-): usado para fazer a ligação
ao terminal negativo da carga.
5. Utilização
5.1 Introdução
O dispositivo é uma fonte de alimentação DC regulada de alta precisão com uma saída regulável. Esta saída
pode ser usada para voltagem constante (C.V.) e corrente constante (C.C.).
A voltagem de saída pode ser ajustada entre 0V e 30V sempre que o dispositivo estiver no modo de voltagem
constante ou modo C.V. O ponto limitador de corrente(máx. ± 12 A) pode também ser ajustado
arbitrariamente neste modo.
A saída de corrente pode ser ajustada continuamente entre 0 e 10 no modo de corrente constante.
A corrente e voltagem de saída são indicadas através de visores LCD.
5.2 Usar o aparelho como fonte de C.V.
1. Rode os botões [3] e [4] completamente para a direita antes de ativar o aparelho.
2. Ativar o aparelho.
3. Use o botão [5] para alcançar a voltagem mais próxima do valor desejado.
4. Em seguida, deverá usar o botão de sintonia fina[6] para definir o valor exacto.
O indicador C.V. é ativado.
5.3 Ligar a Carga
x A carga é ligada conforme indicado na figura abaixo.
x Pode visualizar a corrente de saída[1] e a voltagem de saída [2] no visor assim que o aparelho for ligado.
x O indicador C.V. [8] acende caso o aparelho esteja no modo C.V.
x O LED C.V. está desligado e o LED C.C. acende caso o visor do Amp indique um valor que exceda o valor
instalado. Quando isso acontece, o aparelho passa automaticamente para o modo limitador de corrente.
Instale uma carga que permita que o dispositivo funcione normalmente.
5.4 Usar o dispositivo como fonte C.C.
1. Use o interruptor [9] para ativar o aparelho.
2. Rode os botões [5] e [6] completamente para a direita e rode os botões [3] e [4] completamente para a
esquerda.
3. Ligar a carga.
4. Ajuste [3] e [4] até alcançar a corrente desejada.
O indicador C.C. está agora aceso ao passo que o indicador C.V. está apagado.
5.5 Usar o ajuste do limitador de corrente no modo C.V.
1. Coloque os botões[3] e [4] to na posição máxima.
Bekijk gratis de handleiding van Velleman LABPS3003, stel vragen en lees de antwoorden op veelvoorkomende problemen, of gebruik onze assistent om sneller informatie in de handleiding te vinden of uitleg te krijgen over specifieke functies.
Productinformatie
Merk | Velleman |
Model | LABPS3003 |
Categorie | Niet gecategoriseerd |
Taal | Nederlands |
Grootte | 3196 MB |
Caratteristiche Prodotto
Kleur van het product | Grey, White |
Gewicht | 4300 g |
Breedte | 135 mm |
Diepte | 160 mm |
Hoogte | 280 mm |