Handleiding
Je bekijkt pagina 13 van 28

13
Turbo air
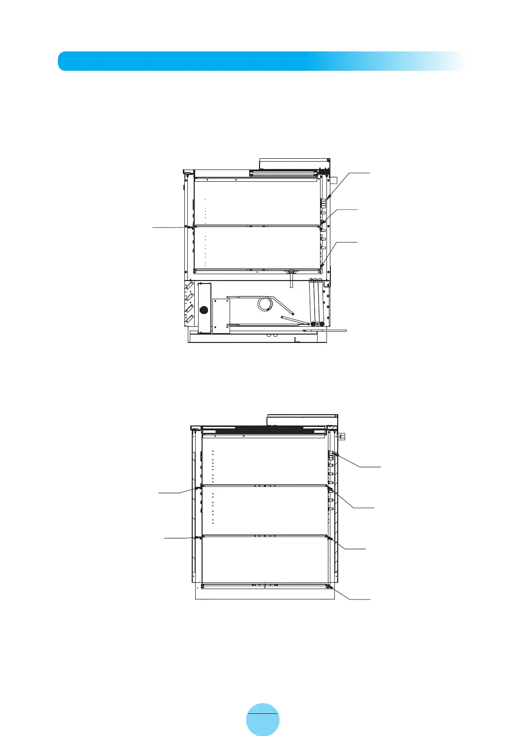
INSTALLATION OF SHELVES (GLASS FROSTER)
Shelf
Shelf
Shelf-Rail
Evaporator
Evaporator
Shelf
Shelf
1st Shelf Rail
2nd Shelf Rail
Shelf
* Note :
The shape and quantities of the shelves can be different according to the
model number.
Shelves shall be placed at the position as follows.
TBC-24S*-GF-N#
TBC-36S*-GF-N#, TBC-50S*-GF-N#
TBC Series(영)_미주향.indd 13 2017-02-13 오전 10:27:50
Bekijk gratis de handleiding van Turbo Air TBC-65SD-N6, stel vragen en lees de antwoorden op veelvoorkomende problemen, of gebruik onze assistent om sneller informatie in de handleiding te vinden of uitleg te krijgen over specifieke functies.
Productinformatie
Merk | Turbo Air |
Model | TBC-65SD-N6 |
Categorie | Koelkast |
Taal | Nederlands |
Grootte | 2792 MB |