Turbo Air STX130MR448A3 handleiding

33 pagina's
PDF beschikbaar

Handleiding

Je bekijkt pagina 26 van 33
26
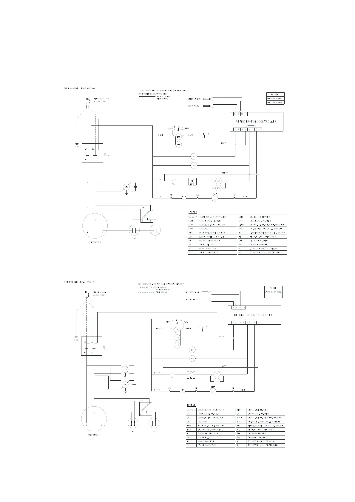
Electrical Wiring Diagram.
Diagram 1. Wiring diagram for SMART 7, Air Defrost 208~230V / 1Ph / 60Hz.
Model : STI068MR448A2 , STI075MR448A2
Diagram 2. Wiring diagram for SMART 7, Air Defrost 208~230V / 1Ph / 60Hz.
Model : STI100MR448A2

Bekijk gratis de handleiding van Turbo Air STX130MR448A3, stel vragen en lees de antwoorden op veelvoorkomende problemen, of gebruik onze assistent om sneller informatie in de handleiding te vinden of uitleg te krijgen over specifieke functies.

Productinformatie

MerkTurbo Air
ModelSTX130MR448A3
CategorieNiet gecategoriseerd
TaalNederlands
Grootte2961 MB