Turbo Air STX045LR448A2 handleiding

33 pagina's
PDF beschikbaar

Handleiding

Je bekijkt pagina 27 van 33
27
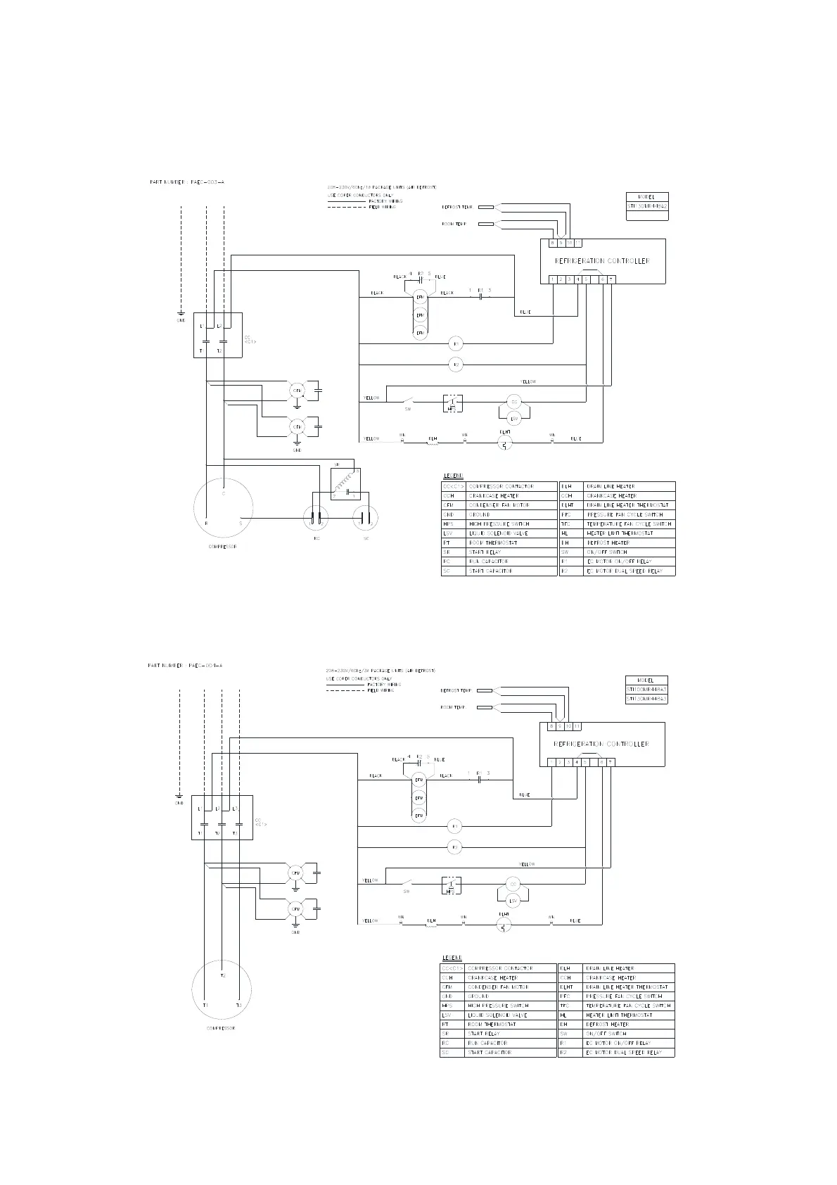
Diagram 3. Wiring diagram for SMART 7, Air Defrost 208~230V / 1Ph / 60Hz.
Model : STI130MR448A2
Diagram 4. Wiring diagram for SMART 7, Electric Defrost 208~230V / 3Ph / 60Hz.
Model : STI100MR448A3, STI130MR448A3

Bekijk gratis de handleiding van Turbo Air STX045LR448A2, stel vragen en lees de antwoorden op veelvoorkomende problemen, of gebruik onze assistent om sneller informatie in de handleiding te vinden of uitleg te krijgen over specifieke functies.

Productinformatie

MerkTurbo Air
ModelSTX045LR448A2
CategorieVriezer
TaalNederlands
Grootte2961 MB