Handleiding
Je bekijkt pagina 9 van 21

9
180
For
10k, 13k
130
300
30
65
30
300
130
81
Indoor unit outline
Pipe hole
Pipe hole
Hook
Hook
Mounting screw
Thread
Weight
Drain hose position
Drain hose position
Hook Hook (Unit : mm)
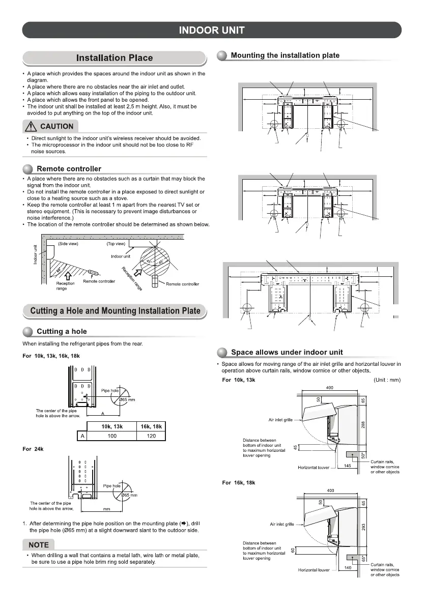
Installation
plate
For
16k, 18k
(Unit : mm)
144
300
50
65
50
300
144
86
Indoor unit outline
Pipe hole
Pipe hole
Hook
Hook
Mounting screw
Thread
Weight
Drain hose position
Drain hose position
Hook Hook
Installation
plate
For
24k
(Unit : mm)
300
105
152
300
152
43
50
40
Indoor unit outline Hook
Pipe hole
Pipe hole
Hook
Mounting screw
Thread Weight
Drain hose
position
Drain hose position
Hook
Installation
plate
Bekijk gratis de handleiding van Toshiba RAS-H10B2KCV2G-M, stel vragen en lees de antwoorden op veelvoorkomende problemen, of gebruik onze assistent om sneller informatie in de handleiding te vinden of uitleg te krijgen over specifieke functies.
Productinformatie
| Merk | Toshiba |
| Model | RAS-H10B2KCV2G-M |
| Categorie | Airco |
| Taal | Nederlands |
| Grootte | 2542 MB |







