Toro 23800C handleiding
Handleiding
Je bekijkt pagina 61 van 100

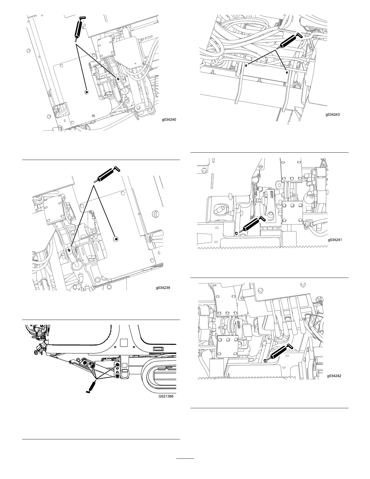
Figure65
Front-pipeelevatorandcamcylinder(drill/carriageside)
Figure66
Rear-pipeelevatorandcamcylinder(drill/carriageside)
Figure67
Stabilizercylinderandfoot(drill/carriageside;repeaton
otherside)
Figure68
Thrust-framepivotpin(Undersideofmachine)
Figure69
Rear-pipeelevator(operator’sside)
Figure70
Front-pipeelevator(operator’sside)
61
Bekijk gratis de handleiding van Toro 23800C, stel vragen en lees de antwoorden op veelvoorkomende problemen, of gebruik onze assistent om sneller informatie in de handleiding te vinden of uitleg te krijgen over specifieke functies.
Productinformatie
| Merk | Toro |
| Model | 23800C |
| Categorie | Niet gecategoriseerd |
| Taal | Nederlands |
| Grootte | 19211 MB |

