Tomahawk TVSA-H handleiding

29 pagina's
PDF beschikbaar

Handleiding

Je bekijkt pagina 22 van 29
17
22
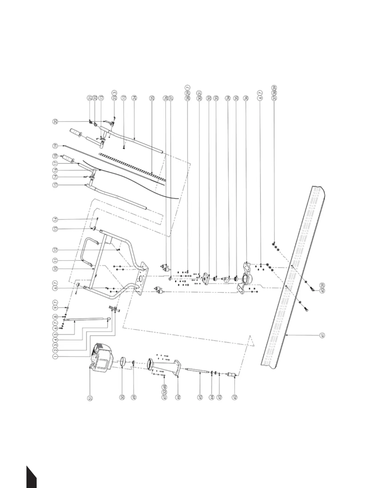
TVSA-H EXPLOSION DIAGRAM

Bekijk gratis de handleiding van Tomahawk TVSA-H, stel vragen en lees de antwoorden op veelvoorkomende problemen, of gebruik onze assistent om sneller informatie in de handleiding te vinden of uitleg te krijgen over specifieke functies.

Productinformatie

MerkTomahawk
ModelTVSA-H
CategorieNiet gecategoriseerd
TaalNederlands
Grootte9404 MB