Toa VX-3000DS handleiding
Handleiding
Je bekijkt pagina 5 van 36

5
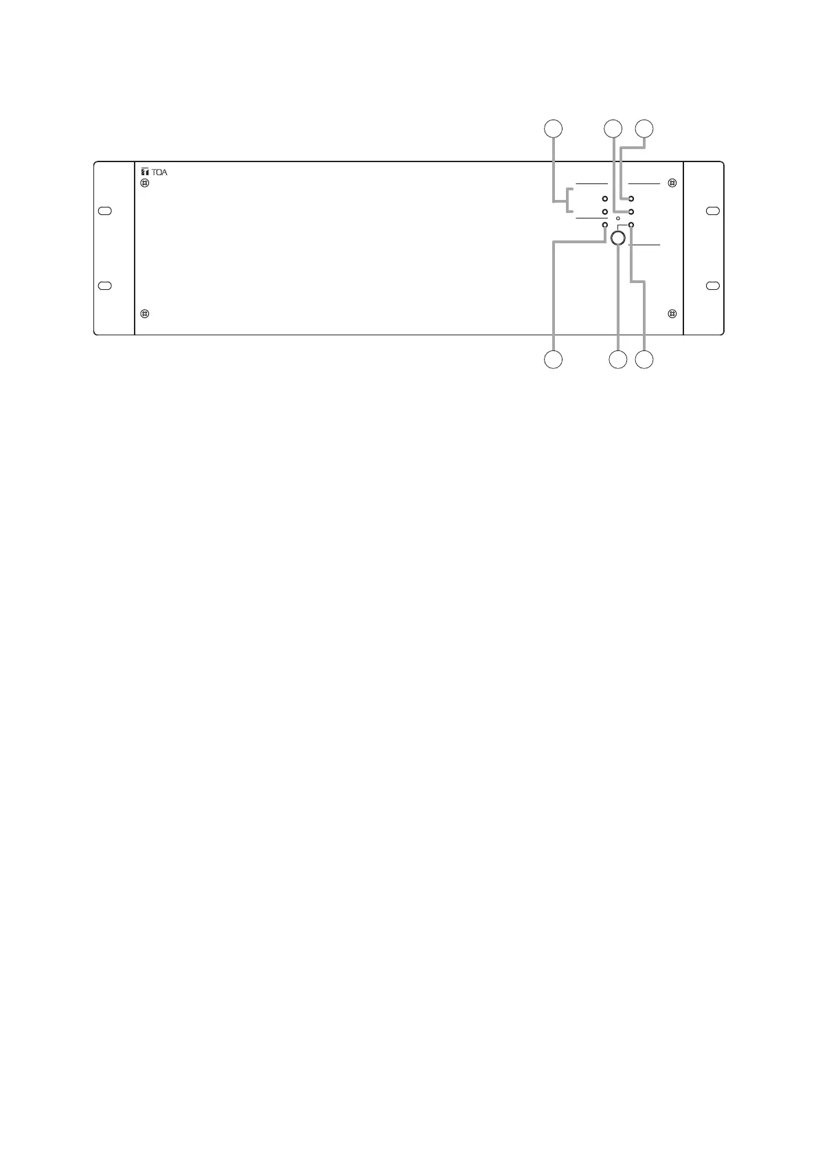
3. NOMENCLATURE AND FUNCTIONS
[Front]
1
2 3
4 5 6
AC POWER BATTERY
IN1
IN2
POWER
CONNECT
CONDITION
POWER SUPPLY MANAGER VX-3000DS
CHECK
CHARGING
1. Power indicators [AC POWER IN1, IN2]
Light green when AC power is supplied through the
AC inlets (18).
2. Battery connection indicator
[BATTERY CONNECT ]
Lights green when the battery is connected.
3. Battery indicator [BATTERY POWER]
Indicates the state of battery usage. Lights green
when the AC power supply is interrupted and
switched over to the backup batteries.
4. Charging indicator [CHARGING]
Indicates battery charging status. Flashes green
while charging, and continuously lights green after
charging completion.
5. Battery check button [BATTERY CHECK]
Pressing this button permits the internal resistance
measurement of the backup batteries and also the
operation check of the built-in 2 fans.
The Battery check indicator goes off if the measured
resistanceexceedsthespeciedvalue.
In automatic mode, the unit performs battery check
every 3 and a half hours.
When the DSLINK is connected to the VX-2000
system, SX-2000 system, or VM-3000 system,
the resistance measurement is activated by the
equipment, not by the unit itself.
Note
Battery check cannot function for 1 minute during
ofwhichBatteryindicator(3)ashestwice,pause,
and then repeats after it has been activated once.
In this case, wait a few minutes, then reactivate it.
6. Battery check indicator [BATTERY CONDITION]
In the AC operated system, the internal resistance
value of the battery is measured automatically or
manually to check whether the battery is faulty.
The Battery check indicator indicates the result.
•Beforemeasurement:
Flashes green at 2-second intervals.
•Duringmeasurement:
Flashes green at 1-second intervals.
•Normal: Lightsgreen.
•Abnormal: Remainsunlit.
In the battery-operated system, the battery voltage
is constantly monitored and its level is indicated by
the indicator as shown below without pressing the
Battery check button.
•Lightsgreen: 25Vormore
•Flashesgreen:20–25V
•OFF: 20Vorless
Bekijk gratis de handleiding van Toa VX-3000DS, stel vragen en lees de antwoorden op veelvoorkomende problemen, of gebruik onze assistent om sneller informatie in de handleiding te vinden of uitleg te krijgen over specifieke functies.
Productinformatie
Merk | Toa |
Model | VX-3000DS |
Categorie | Niet gecategoriseerd |
Taal | Nederlands |
Grootte | 5121 MB |