Thor HRG3618U handleiding

63 pagina's
PDF beschikbaar

Handleiding

Je bekijkt pagina 19 van 63
21
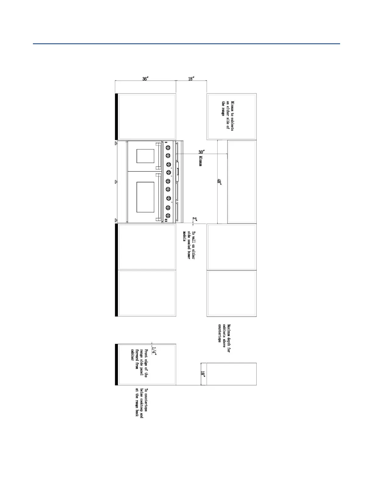
Dimension and Clearance
48” Gas Range Clearance

Bekijk gratis de handleiding van Thor HRG3618U, stel vragen en lees de antwoorden op veelvoorkomende problemen, of gebruik onze assistent om sneller informatie in de handleiding te vinden of uitleg te krijgen over specifieke functies.

Productinformatie

MerkThor
ModelHRG3618U
CategorieFornuis
TaalNederlands
Grootte12792 MB