Teka RVI 10024 GBK handleiding
Handleiding
Je bekijkt pagina 32 van 80

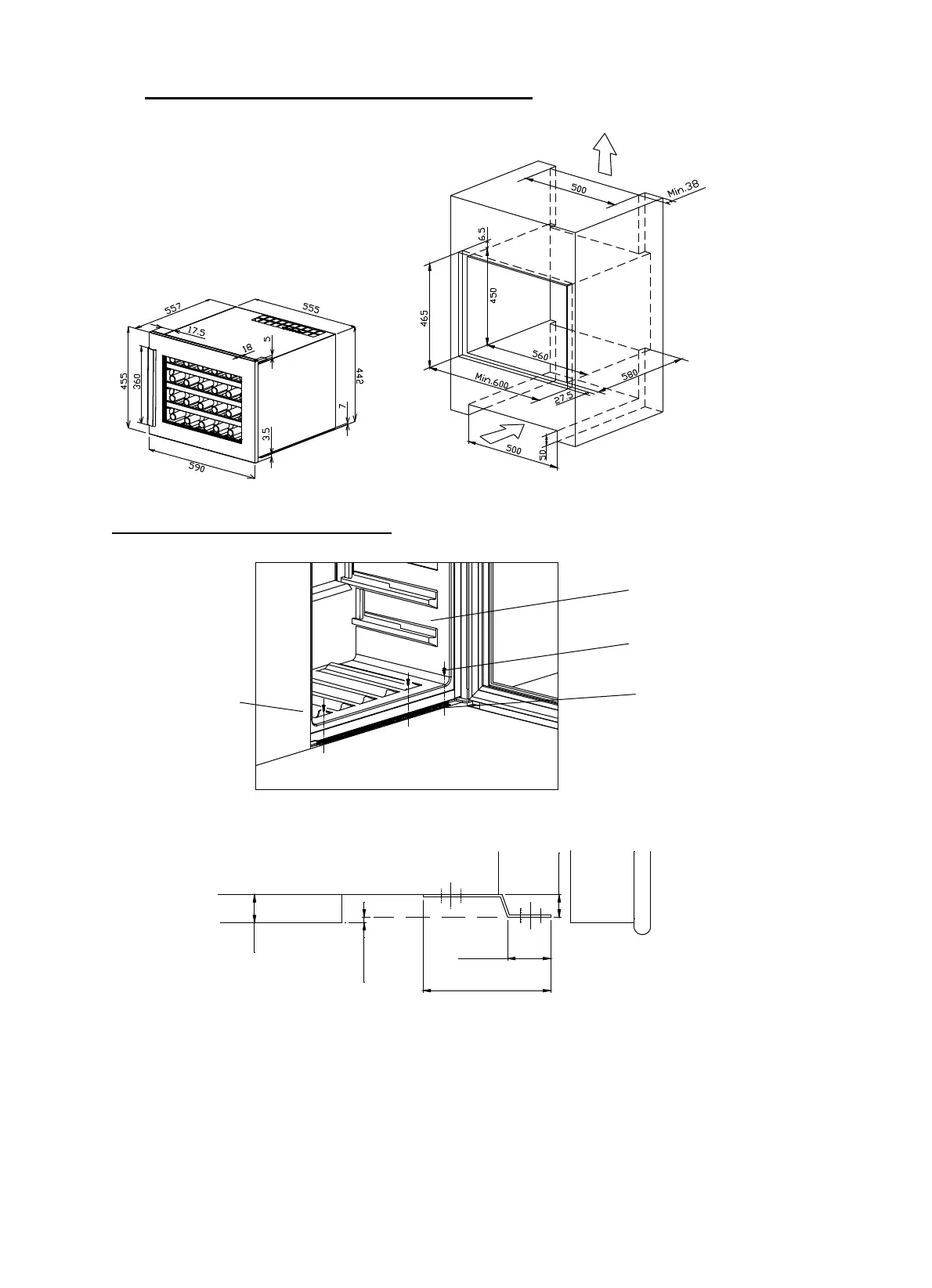
Installation specifications for built-in purposes
How to fix the lower fixing bracket
1. Install the wine cooler (a) into cabinet (b) in correct position
2. Fix the screws (c) through lower fixing bracket with screwdriver
3. Please refer instruction manual Page 10 for how to fix the top fixing bracket
b
a
d
c
5.5
7
32
10.8
1.5
30
Bekijk gratis de handleiding van Teka RVI 10024 GBK, stel vragen en lees de antwoorden op veelvoorkomende problemen, of gebruik onze assistent om sneller informatie in de handleiding te vinden of uitleg te krijgen over specifieke functies.
Productinformatie
| Merk | Teka |
| Model | RVI 10024 GBK |
| Categorie | Niet gecategoriseerd |
| Taal | Nederlands |
| Grootte | 10457 MB |
Caratteristiche Prodotto
| Apparaatplaatsing | Vrijstaand |
| Soort bediening | Knoppen |
| Deurscharnieren | Rechts |
| Ingebouwd display | Ja |
| Gewicht | 29000 g |







