Teka RVI 10024 GBK handleiding
Handleiding
Je bekijkt pagina 21 van 80

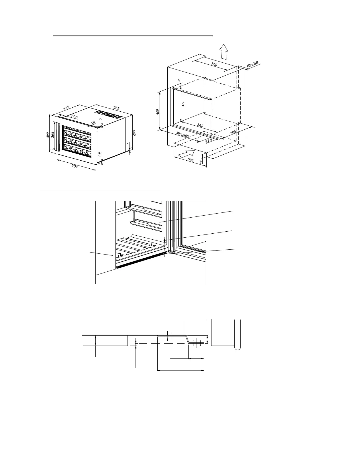
Especificações de instalação para fins de integração
Como fixar o suporte de fixação inferior
1. Instale o refrigerador de vinho (a) no armário (b), na posição correta
2. Com a chave de fendas, fixe os parafusos (c) através do suporte de fixação
inferior
3. Consulte a página 10 do manual de instruções sobre como fixar o suporte de
fixação superior
b
a
d
c
5.5
7
32
10.8
1.5
19
Bekijk gratis de handleiding van Teka RVI 10024 GBK, stel vragen en lees de antwoorden op veelvoorkomende problemen, of gebruik onze assistent om sneller informatie in de handleiding te vinden of uitleg te krijgen over specifieke functies.
Productinformatie
| Merk | Teka |
| Model | RVI 10024 GBK |
| Categorie | Niet gecategoriseerd |
| Taal | Nederlands |
| Grootte | 10457 MB |
Caratteristiche Prodotto
| Apparaatplaatsing | Vrijstaand |
| Soort bediening | Knoppen |
| Deurscharnieren | Rechts |
| Ingebouwd display | Ja |
| Gewicht | 29000 g |







