Teka RSL 41150 BU handleiding
Handleiding
Je bekijkt pagina 185 van 361

PL
11
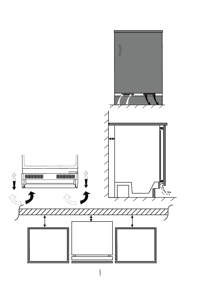
Ustawianie chłodziarki pod
blatem i regulacja nóżek
Aby można było korzystać z urządzenia
pod blatem, należy zachować odstęp
pomiędzy ścianą a produktem
wynoszący na co najmniej 30 mm, jak
to przedstawiono na rysunku.
Nie wolno zasłaniać otworów
wentylacyjnych, ponieważ zmniejsza to
sprawność chłodziarki. (140 cm
)
Jeśli chłodziarka nie stoi równo;
Można wyrównać jej ustawienie
obracając przednie nóżki, tak jak
pokazano na rysunku. Narożnik lodówki
obniża się, gdy nóżka w tym narożniku
jest obracana w kierunku wskazanym
czarną strzałką lub podnosi gdy
nóżka jest obracana w w przeciwnym
kierunku. Łatwiej będzie wykonać tę
regulację przy pomocy drugiej osoby,
która nieco podniesie urządzenie.
30mm
40mm 40mm
30mm
Bekijk gratis de handleiding van Teka RSL 41150 BU, stel vragen en lees de antwoorden op veelvoorkomende problemen, of gebruik onze assistent om sneller informatie in de handleiding te vinden of uitleg te krijgen over specifieke functies.
Productinformatie
| Merk | Teka |
| Model | RSL 41150 BU |
| Categorie | Niet gecategoriseerd |
| Taal | Nederlands |
| Grootte | 33243 MB |
Caratteristiche Prodotto
| Apparaatplaatsing | Ingebouwd |
| Kleur van het product | Wit |
| Deurscharnieren | Rechts |
| Ingebouwd display | Nee |
| Gewicht | 30000 g |







