Handleiding
Je bekijkt pagina 7 van 56

PLEASE REMEMBER THAT THE GUA-
RANTEE DOES NOT COVER THE
GLASS IF IT SUFFERS A VIOLENT
BLOW OR IF IT IS USED IMPROPERLY.
Positioning the oven
See the corresponding manual.
Anchoring the hob
When the gap has been properly sized, the
sealing washer should be put on the lower
face of the glass. Silicone should not be
applied between the glass and the unit
worktop because if it becomes neces-
sary to remove the hob from its position,
the glass could break when trying to
detach it.
To secure the hob to the cabinet, four brac-
kets should be fastened to the existing holes
on the bottom part of the casing (two in the
front and two in the back). There are two
possibilities of where the brackets may be
placed, just as is shown in figure 3.
Depending on the thickness of the cabinet, it
may be necessary to use the self tapping
screws that are provided as compliments for
securing; insert them in the circular holes of
the bracket. The thread of this hole will be
made when the screw is inserted inside of it.
The thread should be made before faste-
ning the bracket to the hob.
Hob is mounted by inserting the quick nuts
into the holes where the screws go (see
fig. 5) and then attaching the appropriate
clip, depending on the worktop’s thickness
(20, 30 and 40 mm) and tightening the
screws until it is firmly fastened.
If an oven is being installed beneath the
hob, avoid the power cable coming into
contact with very hot components.
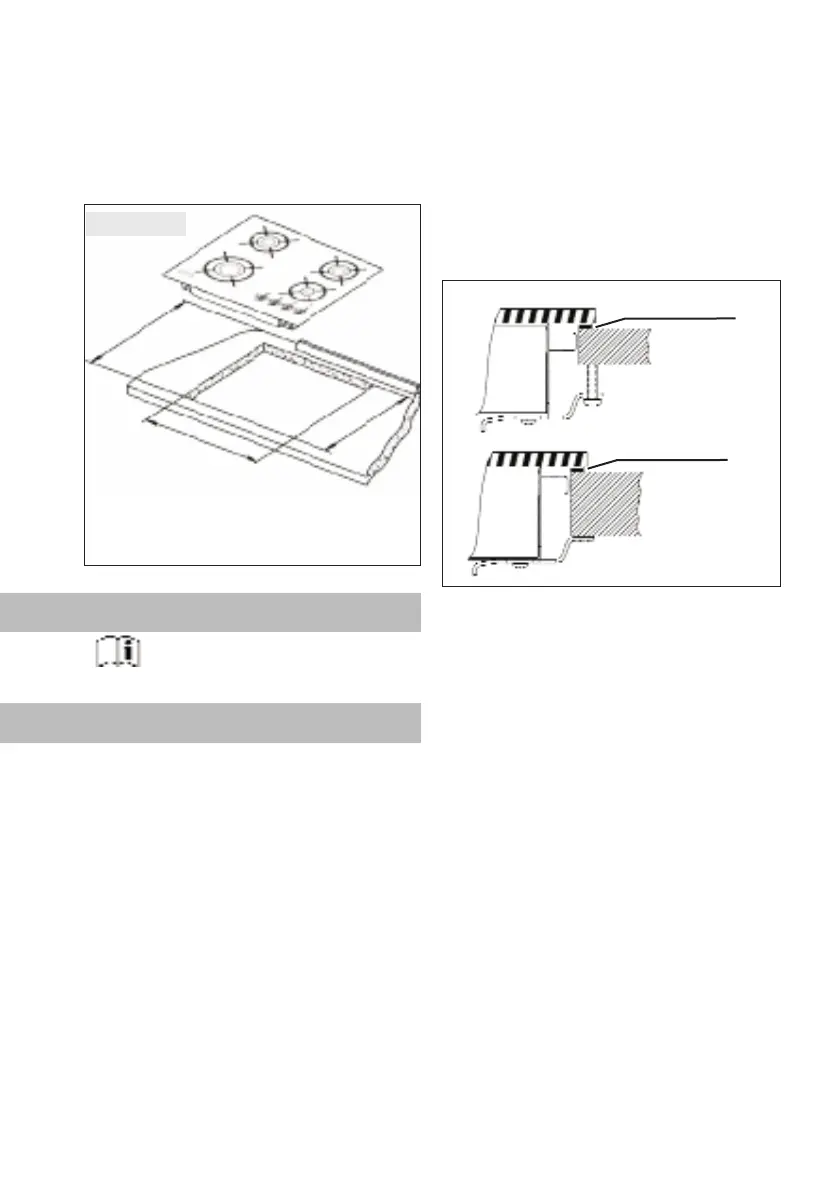
fig. 11
575 max.
L
fig. 3
Fitting holes
Sealing washer
Sealing washer
The dimensions L and W are shown in the table
"Dimensions and characteristics" of the Technical
Information section.
W
GB_61401134_en.qxd 27.02.2015 14:52 Page 7
7
Bekijk gratis de handleiding van Teka HLX 50 4G AI CI, stel vragen en lees de antwoorden op veelvoorkomende problemen, of gebruik onze assistent om sneller informatie in de handleiding te vinden of uitleg te krijgen over specifieke functies.
Productinformatie
| Merk | Teka |
| Model | HLX 50 4G AI CI |
| Categorie | Fornuis |
| Taal | Nederlands |
| Grootte | 7659 MB |







