Teka FS 901 5GE handleiding
Handleiding
Je bekijkt pagina 73 van 136

73
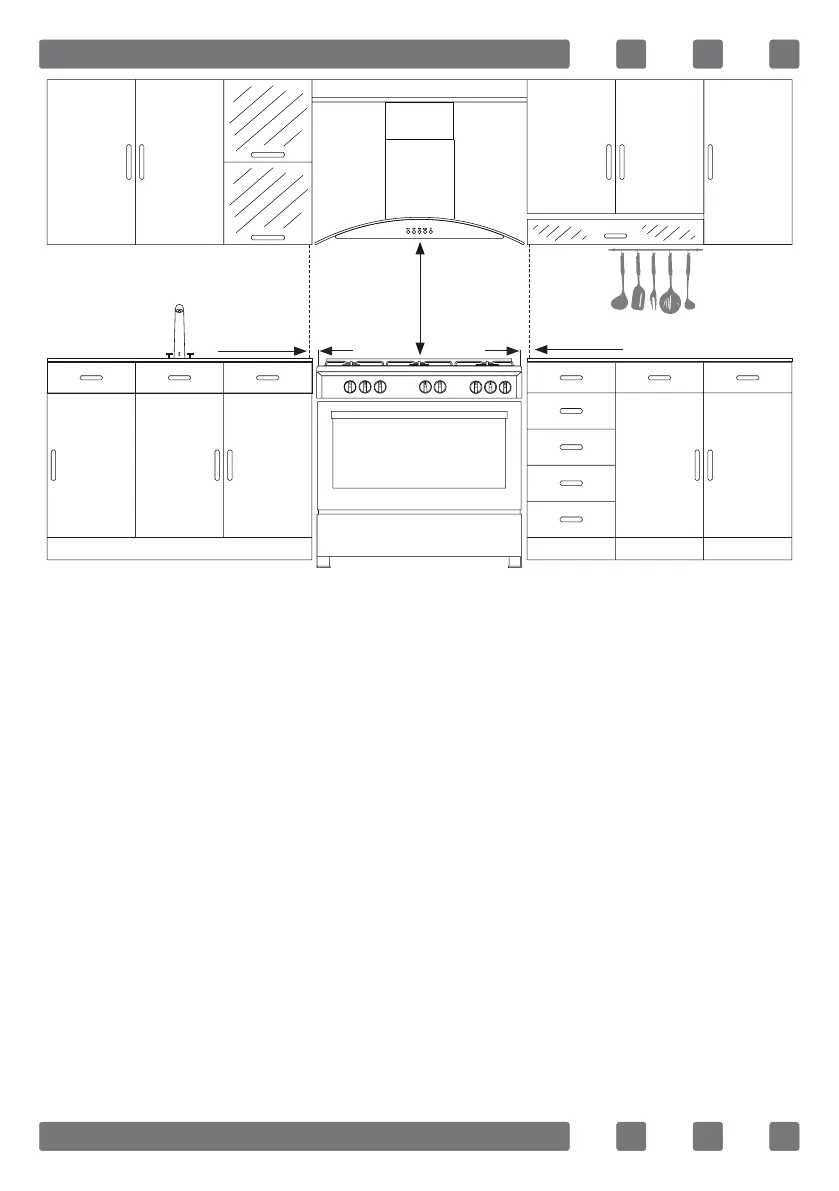
AVERTISSEMENT: Les meubles de cuisine près de l'appareil doivent être
résistants à la chaleur.
AVERTISSEMENT: N'installez pas l’appareil à proximité de réfrigérateurs
ou de congélateurs. La chaleur émise par l’appareil augmente la consommation
d'énergie des dispositifs de refroidissement.
AVERTISSEMENT: N'utilisez pas la porte et / ou la poignée pour transporter
ou déplacer l’appareil.
650mm min.
6,5 mm min.
6,5 mm min.
Bekijk gratis de handleiding van Teka FS 901 5GE, stel vragen en lees de antwoorden op veelvoorkomende problemen, of gebruik onze assistent om sneller informatie in de handleiding te vinden of uitleg te krijgen over specifieke functies.
Productinformatie
| Merk | Teka |
| Model | FS 901 5GE |
| Categorie | Niet gecategoriseerd |
| Taal | Nederlands |
| Grootte | 12039 MB |







