Handleiding
Je bekijkt pagina 19 van 54

(¤)
(¤)
(¤)
(¤)
(¤)
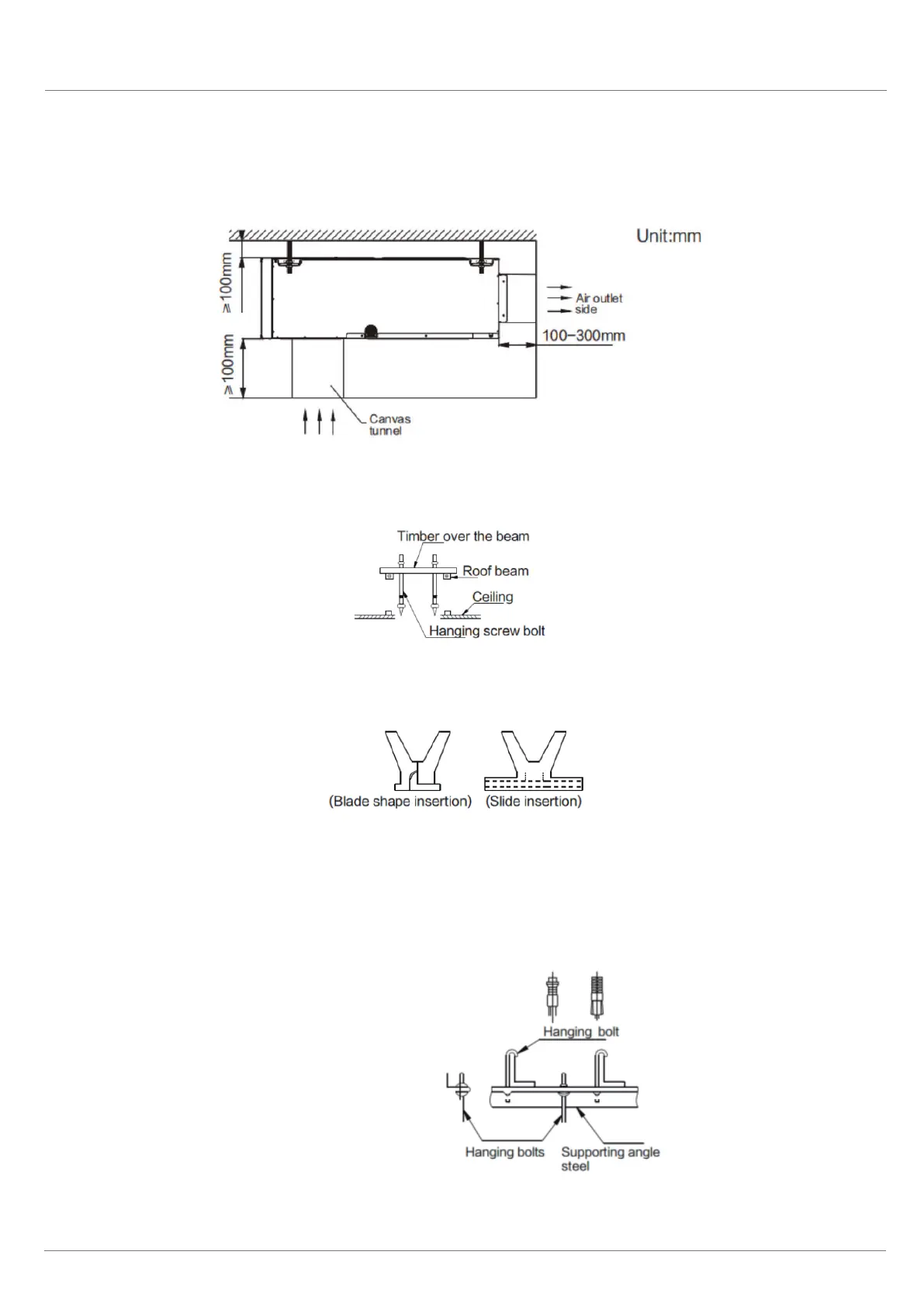
Ducted Air Conditioners17
Installation Manual
Bekijk gratis de handleiding van TCL TCD71D1HWH-DV, stel vragen en lees de antwoorden op veelvoorkomende problemen, of gebruik onze assistent om sneller informatie in de handleiding te vinden of uitleg te krijgen over specifieke functies.
Productinformatie
Merk | TCL |
Model | TCD71D1HWH-DV |
Categorie | Airco |
Taal | Nederlands |
Grootte | 11131 MB |