Handleiding
Je bekijkt pagina 13 van 54

¨
©£
Ducted Air Conditioners11
Installation Manual
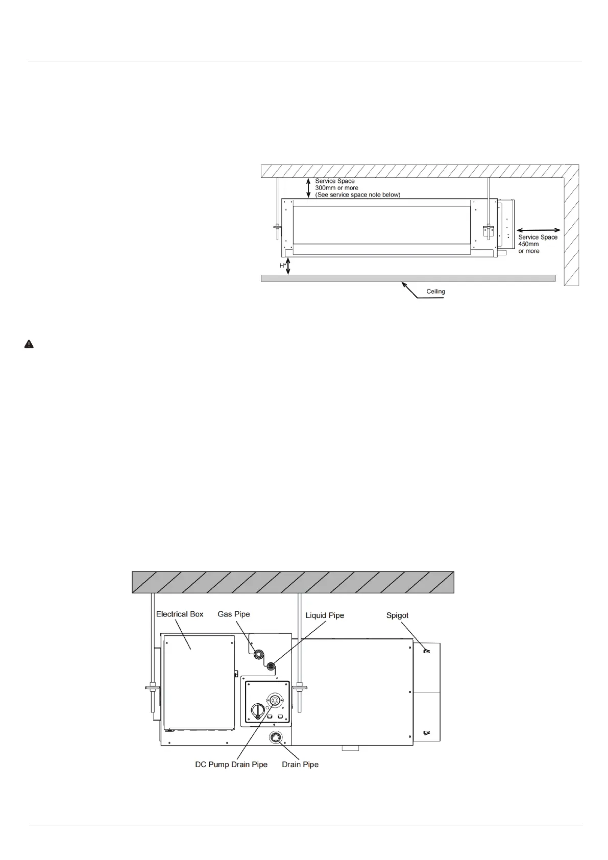
SELECTING INSTALLATION SITE
¤
(¤¤¤)
Bekijk gratis de handleiding van TCL TCD160D1HWH-DV, stel vragen en lees de antwoorden op veelvoorkomende problemen, of gebruik onze assistent om sneller informatie in de handleiding te vinden of uitleg te krijgen over specifieke functies.
Productinformatie
Merk | TCL |
Model | TCD160D1HWH-DV |
Categorie | Airco |
Taal | Nederlands |
Grootte | 11131 MB |