Handleiding
Je bekijkt pagina 14 van 54

ª
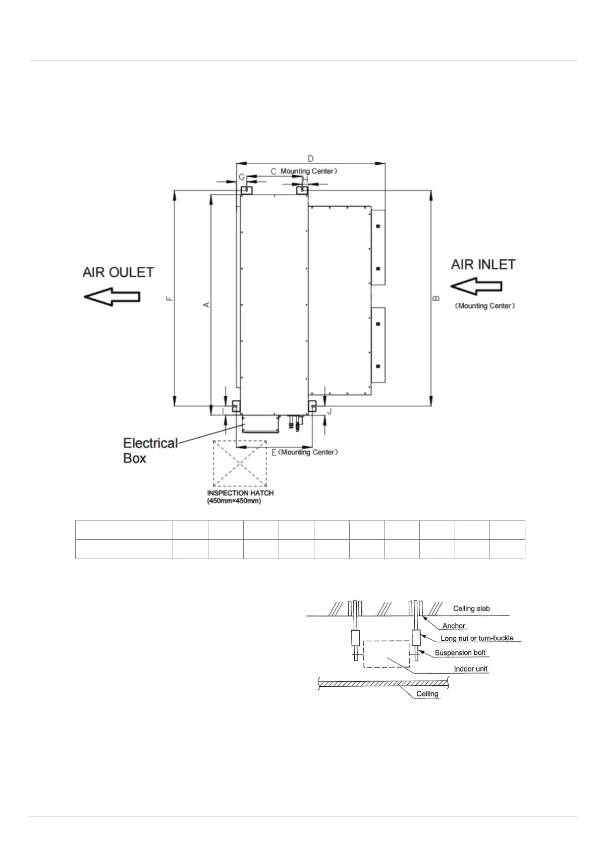
PREPARATION BEFORE INSTALLATION(TCD100/125/140/160)
Ducted Air Conditioners 12
Installation Manual
945
Bekijk gratis de handleiding van TCL TCD125D1HWH-DV, stel vragen en lees de antwoorden op veelvoorkomende problemen, of gebruik onze assistent om sneller informatie in de handleiding te vinden of uitleg te krijgen over specifieke functies.
Productinformatie
Merk | TCL |
Model | TCD125D1HWH-DV |
Categorie | Airco |
Taal | Nederlands |
Grootte | 11131 MB |