Handleiding
Je bekijkt pagina 29 van 72

TCL Air Conditioner Service Manual
29
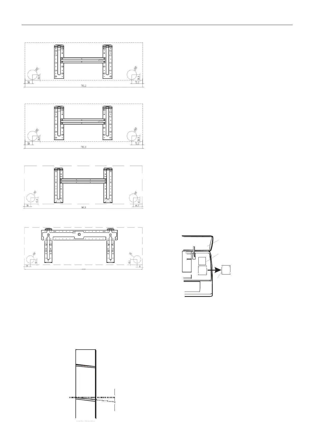
9K(770X)
12K(770X)
12K(800X)/18K(900X)
24K(1010X)
Note: The shape of the mounting plate may be
different from the one above, but installation
method is similar.
2.6.2 Drilling a hole in the wall for the piping
1) Decide where to drill the hole in the wall for the
piping (if necessary) according to the position of the
mounting plate
2) Install a flexible flange through the hole in the wall to
keep the latter intact and clean.
The hole must slope downwards towards the exterior.
Note: Keep the drain pipe down towards the direction of
the wall hole, otherwise leakage may occur.
1.6.3 Electrical connections---Indoor unit
1).Lift the front panel.
2).Take off the cover as indicated in the picture (by
removing a screw or by breaking the hooks).
3).For the electrical connections, see the circuit
diagram on the right part of the unit under the front
panel.
4).Connect the cable wires to the screw terminals by
following the numbering, Use wire size suitable to
the electric power input (see name plate on the unit)
and according to all current national safety code
requirements.
5).The cable connecting the outdoor and indoor units
must be suitable for outdoor use.
6).The plug must be accessible also after the appliance
has been installed so that it can be pulled out if
necessary.
7)
.An efficient earth connection must be ensured.
8).If the power cable is damaged, it must be
replaced by an authorized Service Centre.
★ Refrigerant piping connection
The piping can be run in the 3 directions indicated by
numbers in the picture. When the piping is run in
direction 1 or 3, cut a notch along the groove on the
side of the indoor unit with a cutter.
Run the piping in the direction of the wall hole and
bind the copper pipes, the drain pipe and the power
cables together with the tape with the drain pipe at the
bottom, so that water can flow freely.
5mm
Indoors
Out doors
Front panel
Terminal blo ck cover
Wiring diagram
Bekijk gratis de handleiding van TCL TAC-09CSD, stel vragen en lees de antwoorden op veelvoorkomende problemen, of gebruik onze assistent om sneller informatie in de handleiding te vinden of uitleg te krijgen over specifieke functies.
Productinformatie
Merk | TCL |
Model | TAC-09CSD |
Categorie | Airco |
Taal | Nederlands |
Grootte | 10827 MB |