Handleiding
Je bekijkt pagina 12 van 18

Step 4
9
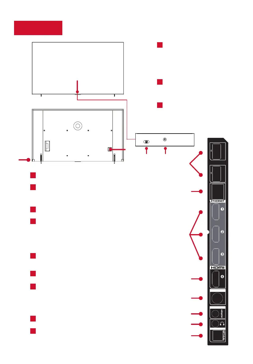
Get to know your TV
I
HEADPHONE OUT
TV FRONT
H
A
B
C
D
A
TV SIDE
AV IN
AUDIO OUT
CABLE/ANT
4K/
120Hz
4K/
144Hz
4K/
60Hz
(e)ARC
4K/
60Hz
USB 2.0
5V 0.5A
USB 2.0
5V 0.5A
I
H
A
B
C
I
H
ETHERNET Connect using an ethernet cable to your
home network router or switch.
A
B
POWER PORT
I
Connect headphones or other
TV BACK
H
A
B
L
I
ANTENNA/CABLE IN Connect an outdoor VHF/UHF
antenna or Cable TV feed.
OPTICAL (DIGITAL AUDIO OUT)
Connect an optical
cable to an external digital audio system.
The AV Input can be used to connect older devices
that use analog audio/video outputs. Compatible
adapter (not included) connects to the RCA cable
(video - yellow and audio - white and red) that you
normally use to connect to that device.
AV IN adapter
AV Input (analog audio/video).
K
J
external speakers.
USB PORT
Connect a USB device to access photos,
music and movies. Or connect the optional TCL
webcam to chat with friends using supported video
call apps.
E
H
HDMI PORTS
Highest quality audio/video connection.
Connect cable box, Blu-ray player, gaming console,
or other devices to your TV using HDMI cables.
F
HDMI port 1: Supports up to 4K/144Hz
HDMI port 2: Supports up to 4K/120Hz
HDMI ports 3 & 4: Supports up to 4K/60Hz
G
HDMI eARC/ARC PORT Connect HDMI eARC/ARC
(audio return
channel) capable audio devices like
sound bars or
AV receivers.
IR RECEIVER Receives signal from
the TV remote.
STATUS LIGHT OF HANDS-FREE
VOICE CONTROL
Glows when you
activate the hands-free voice control.
(To learn more about the function,
go to page 14.)
A
B
D
Connect your TV
to the power source
with the
included power cable.
POWER and OPTIONS BUTTON
Press once to open the menu.
Short click to change the menu and
long click to select.
E
HANDS-FREE VOICE CONTROL
MIC SWITCH
Toggle switch to enable or disable
the TV's integrated microphone.
TV BOTTOM
C B
F
G
J
K
L
I
E
G/H
Bekijk gratis de handleiding van TCL 98Q651G, stel vragen en lees de antwoorden op veelvoorkomende problemen, of gebruik onze assistent om sneller informatie in de handleiding te vinden of uitleg te krijgen over specifieke functies.
Productinformatie
| Merk | TCL |
| Model | 98Q651G |
| Categorie | Televisie |
| Taal | Nederlands |
| Grootte | 2009 MB |







