Taurus CIG3FIXMG handleiding
Handleiding
Je bekijkt pagina 53 van 68

INSTALAÇÃO DO SEU FORNO
Verificar se a instalação elétrica é adequada para colocar o aparelho em condições de funcionamento. Se a
instalação elétrica não for adequada, contactar um eletricista e um canalizador para fazer as adequações ne-
cessárias. O fabricante não será responsável por danos caudados por operações realizadas por pessoas não
autorizadas.
ADVERTÊNCIA: É responsabilidade do cliente preparar o local onde o produto será colocado e também pre-
parar a instalação elétrica.
ADVERTÊNCIA: Devem ser seguidas as regras das normas locais sobre as instalações elétricas durante a
instalação do produto.
ADVERTÊNCIA: Verificar se há algum dano no dispositivo antes de o instalar. Não instalar o produto se estiver
danificado. Produtos danificados causam riscos à sua segurança.
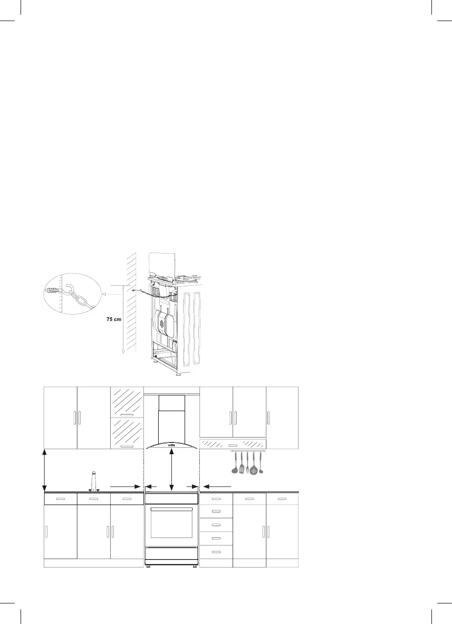
Local correto para instalação e advertências importantes
Os pés do aparelho não devem ficar sobre superfícies macias, como tapetes. O piso da cozinha deve ser du-
rável para suportar o peso da unidade e de qualquer outro utensílio de cozinha que possa ser usado no forno.
O aparelho deve ser usado com uma folga mínima de 400 mm sobre as superfícies superiores do fogão e a 6,5
mm das superfícies laterais dentro de um móvel de cozinha.
O aparelho é adequado para uso em ambas as paredes laterais, sem qualquer suporte, ou sem ser instalado
numa estrutura. Se for instalado um exaustor ou aspirador acima do fogão, seguir as instruções do fabri-
cante para a altura da montagem. (mín. 650 mm)
6,5 mm min.
6,5 mm min.
650 mm min.
400 mm min.
Ilustração Da Fixação Da Corrente
Antes de utilizar o aparelho, a fim de garantir uma
utilização segura, certifique-se deque fixou o apa-
relho à parede usando a corrente e o parafuso em
gancho que são fornecidos. Certifique-se de que o
gancho é aparafusado à parede de forma segura.
Downloaded by: pd-oliana on 07-03-2023 11:29 CET
Bekijk gratis de handleiding van Taurus CIG3FIXMG, stel vragen en lees de antwoorden op veelvoorkomende problemen, of gebruik onze assistent om sneller informatie in de handleiding te vinden of uitleg te krijgen over specifieke functies.
Productinformatie
Merk | Taurus |
Model | CIG3FIXMG |
Categorie | Niet gecategoriseerd |
Taal | Nederlands |
Grootte | 6605 MB |
Caratteristiche Prodotto
Apparaatplaatsing | Aanrecht |
Soort bediening | Draaiknop |
Vermogen grill | 2000 W |
Kleur van het product | Roestvrijstaal |
Ingebouwd display | Nee |