Taurus CIG3FIXMG handleiding
Handleiding
Je bekijkt pagina 34 van 68

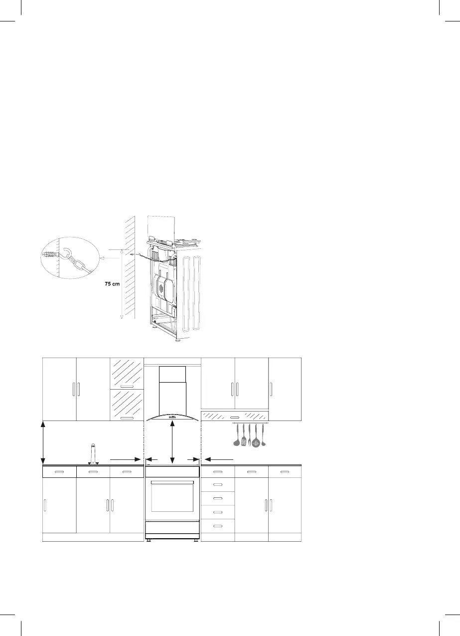
Right Place For Installation And Important Warnings
Appliance feet should not stay on soft surfaces such as carpets. The kitchen floor shall be durable to carry
the unit weight and any other kitchenware that may be used on the oven.
Appliance should be used with a clearance of minimum 400 mm over the upper hob surfaces, and 6,5 mm
from side surfaces inside a kitchen furniture.
The appliance is suitable for use on both side walls, without any support, or without being installed in a cabi-
net. If a hood or aspirator will be installed above the cooker, follow the instructions of the manufacturer for
height of mounting. (min. 650 mm)
WARNING: The kitchen furniture near the appliance must be heat resistant.
WARNING: Do not install the appliance beside refrigerators or coolers. Heat radiated by the appliance increases
the energy consumption of cooling devices.
WARNING: Do not use the door and/or handle to carry or move the appliance.
CHAIN LASHING ILLUSTRATION
Before using the appliance, in order to ensure safe use, be sure to fix the appliance to the wall using thechain and
hooked screw supplied. Ensure that the hook is screwed into the wall securely.
6,5 mm
min.
6,5 mm min.
650 mm
min.
400 mm
min.
Downloaded by: pd-oliana on 07-03-2023 11:29 CET
Bekijk gratis de handleiding van Taurus CIG3FIXMG, stel vragen en lees de antwoorden op veelvoorkomende problemen, of gebruik onze assistent om sneller informatie in de handleiding te vinden of uitleg te krijgen over specifieke functies.
Productinformatie
Merk | Taurus |
Model | CIG3FIXMG |
Categorie | Niet gecategoriseerd |
Taal | Nederlands |
Grootte | 6605 MB |
Caratteristiche Prodotto
Apparaatplaatsing | Aanrecht |
Soort bediening | Draaiknop |
Vermogen grill | 2000 W |
Kleur van het product | Roestvrijstaal |
Ingebouwd display | Nee |