Handleiding
Je bekijkt pagina 133 van 373

133
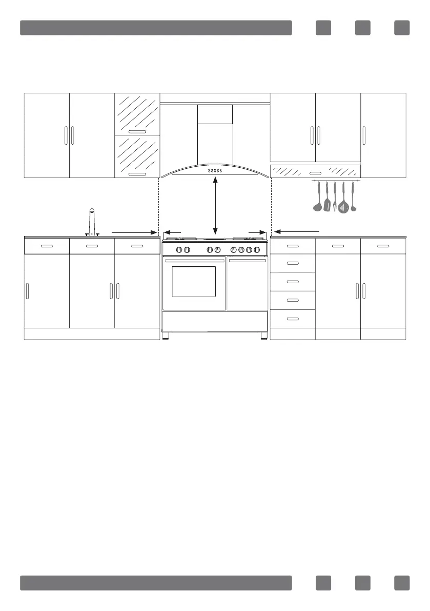
Instalación Adecuada
Para una instalación correcta, siga las dimensiones indicadas en la
imagen siguiente.
ATENCIÓN: Los muebles de cocina cerca del elec-
trodoméstico deben ser resistentes al calor (Mínimo
100 °C).
ATENCIÓN: No instale el aparato al lado de refri-
geradores o refrigeradores. El calor irradiado por el
aparato aumenta el consumo de energía de los dis-
positivos de refrigeración.
ATENCIÓN: No use la puerta y/o el asa para trans-
portar o mover el aparato.
650mm min.
50 mm min.
50 mm min.
Bekijk gratis de handleiding van Svan SKGW5901PBX, stel vragen en lees de antwoorden op veelvoorkomende problemen, of gebruik onze assistent om sneller informatie in de handleiding te vinden of uitleg te krijgen over specifieke functies.
Productinformatie
| Merk | Svan |
| Model | SKGW5901PBX |
| Categorie | Fornuis |
| Taal | Nederlands |
| Grootte | 28294 MB |







