Handleiding
Je bekijkt pagina 28 van 134

28
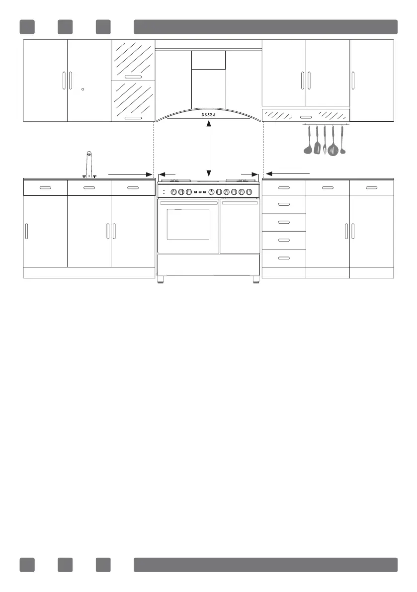
WARNING: The kitchen furniture near the appliance must be heat
resistant.
WARNING: Do not use the door and/or handle to carry or move the appliance.
WARNING: Do not install the appliance beside refrigerators or coolers.
Heat radiated by the appliance increases the energy consumption of cooling
devices.
650mm min.
65 mm min.
65 mm min.
GB
Bekijk gratis de handleiding van Svan SKGW5901PB, stel vragen en lees de antwoorden op veelvoorkomende problemen, of gebruik onze assistent om sneller informatie in de handleiding te vinden of uitleg te krijgen over specifieke functies.
Productinformatie
Merk | Svan |
Model | SKGW5901PB |
Categorie | Fornuis |
Taal | Nederlands |
Grootte | 11033 MB |