Handleiding
Je bekijkt pagina 29 van 68

29
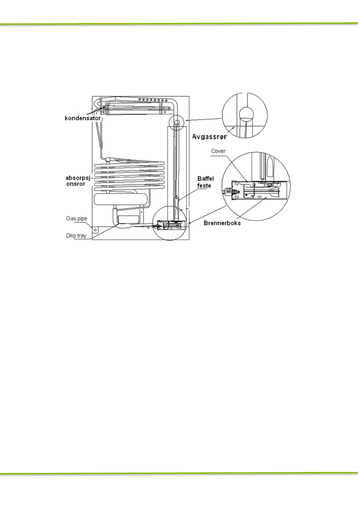
4. Rengör insidan av avgasröret med en borste. Kontrollera brännaren efter rengöring och ta
bort allt damm och sot.
5. KOM IHÅG! Sätt i spiralen igen. Denna del är nödvändig för effektiv kylning när kylskåpet är
i drift.
Felsökning och underhåll
Om kylskåpet inte fungerar, kontrollera följande punkter innan du ringer till försäljningsstället:
1. Att denna bruksanvisning och installationsmanual har följts.
2. Att kylskåpet står plant.
3. Kontrollera att rätt energikälla har använts enligt kylskåpets anvisningar,
4. Om kylskåpet inte går på gas, kontrollera följande:
a. Att gasflaskan inte är tom
b. Att alla gasolventiler är öppna.
Anledningar till att kylskåpet inte är tillräckligt kallt:
- Ventilation runt kylenheten är otillräcklig.
- Termostaten är inställd på hög temperatur
- Dörren öppnas ofta, eller så tätas packningen runt dörren inte ordentligt.
- För mycket mat lagras i kylskåpet
- Gastrycket är felaktigt - kontrollera tryckregulatorn på gasflaskan.
SV
Bekijk gratis de handleiding van Sunwind Ventus 225, stel vragen en lees de antwoorden op veelvoorkomende problemen, of gebruik onze assistent om sneller informatie in de handleiding te vinden of uitleg te krijgen over specifieke functies.
Productinformatie
| Merk | Sunwind |
| Model | Ventus 225 |
| Categorie | Koelkast |
| Taal | Nederlands |
| Grootte | 4971 MB |