Handleiding
Je bekijkt pagina 10 van 40

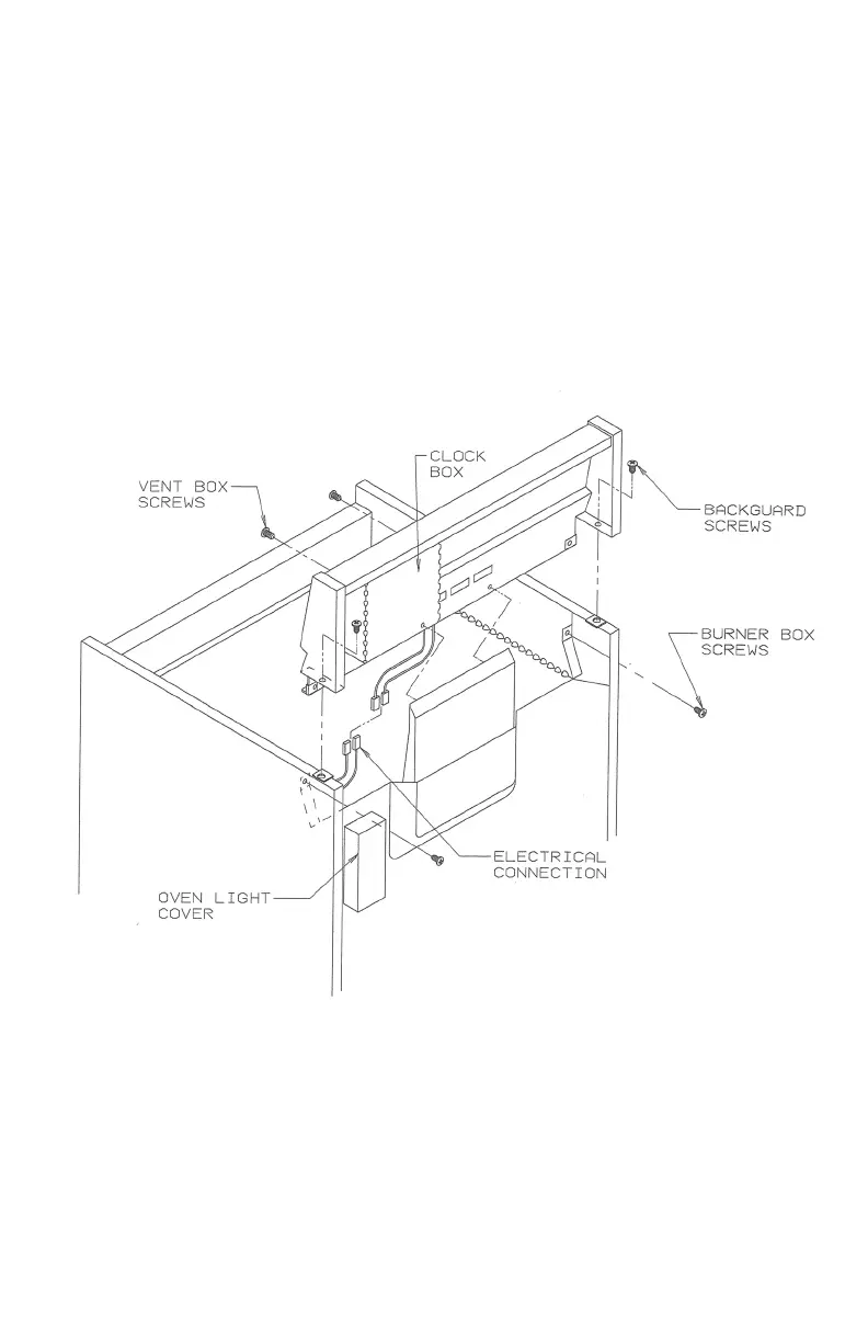
BACKGUARD INSTALLATION INSTRUCTIONS
Gas Ranges
A. Remove main top.
B. Place the backguard on top of side panels at the rear of range.
C. Attach and tighten the screws through the lower inside ange of the end caps and the
clips on the side panels.
D. Attach and tighten the screws through the holes in the side ange of the burner box
and into the clips at the bottom corners of the backguard.
E. Attach the lower edge of the backguard to the oven vent outlet.
F. Connect the clock wiring by plugging the two black wires together and the two
white wires together.
10
Bekijk gratis de handleiding van Summit TNM6107BRW, stel vragen en lees de antwoorden op veelvoorkomende problemen, of gebruik onze assistent om sneller informatie in de handleiding te vinden of uitleg te krijgen over specifieke functies.
Productinformatie
| Merk | Summit |
| Model | TNM6107BRW |
| Categorie | Fornuis |
| Taal | Nederlands |
| Grootte | 5509 MB |







