Stiebel Eltron HM handleiding
Handleiding
Je bekijkt pagina 18 van 24

18 | HM(S) | HM(S) Trend www.stiebel-eltron.com
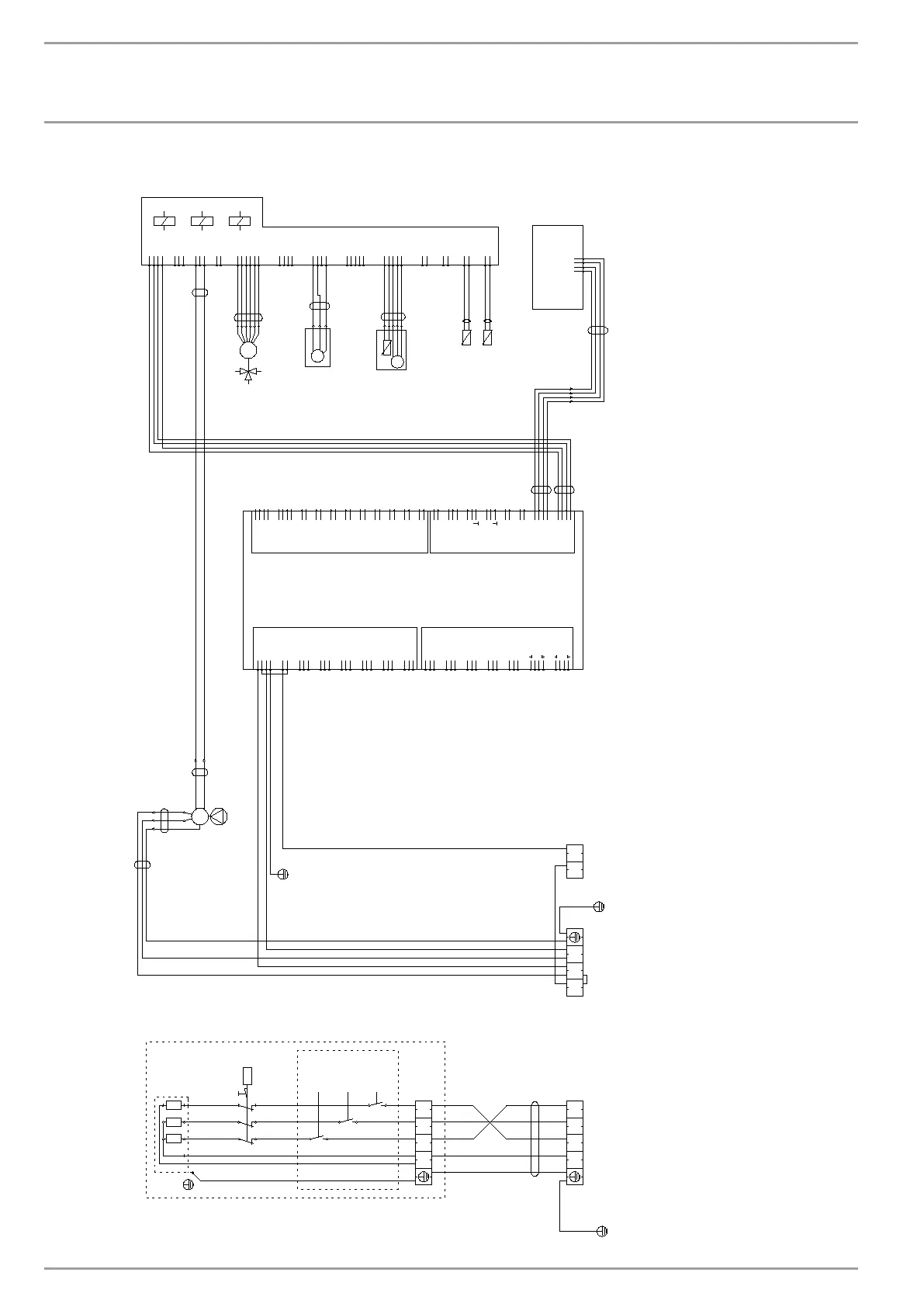
14.2 Elektriciteitsschema HM | HM Trend
M
1~
1 2 3 4 5 6
p
+SV
GND
OUT
421
Hz
T2
T1
+SV
GND
OUT
PT 1000
XD02 XD01.1 XD01.2
MA14
MA15
BP10
BF01
BT02
BT01
NETZ EVUDHC (MFG)
XD80
1
1
1
1
1
1
1
1
1
1
1
1
1
2
2
3
3
4
2
3
2
2
2
2
2
2
2
2
2
2
3
3
3
3
3
4
4
4
4
4
5
5
5
6
X72
X71
X70
X69
X68
X67
X66
X65
X64
X63
X62
X61
X60
AA07 (MFG)
KF22 KF21 KF20
MFG
BT55
X59
AA07
<T
11
12
21
22 32
31
1
3
1
1
3
3
KF20
KF21
KF22
EB01
PWM
GND
134
M
1~
ws (PWM)
br (GND)
N
L
L
L
L
L
L
L
L
L
L
L
L
N
N
N
N
N
N
N
N
N
N
N
N
N
PE
PE
PE
PE
PE
PE
PE
PE
PE
PE
PE
PE
L'
L*
PE
PE
X2.15
X2.14
X2.13
X2.12
X2.11
X2.10
X2.9
X2.8
X2.7
X2.6
X2.5
X2.4
X2.3
X2.2
X2.1
+
+
-
-
L
L
H
H
1
1
1
1
1
1
1
1
1
1
1
2
2
2
2
2
2
2
2
2
2
2
3
+
+
IN
IN
1
1
2
2
+
+
-
-
L
L
H
H
X1.17
X1.16
X1.15
X1.14
X1.13
X1.12
X1.11
X1.10
X1.9
X1.8
X1.7
X1.6
X1.5
X1.4
X1.3
AA01 (WPM4)
X1.19
X1.18
CAN B
CAN A
X1.1
X1.2
CAN A
CAN B
L
L
N
AA06
1234
X27
1=
2=
3=
4=
+12V
H
L
L1L2L3N
N L1 L2 L3 NL 2 L L´
D0000081112
Bekijk gratis de handleiding van Stiebel Eltron HM, stel vragen en lees de antwoorden op veelvoorkomende problemen, of gebruik onze assistent om sneller informatie in de handleiding te vinden of uitleg te krijgen over specifieke functies.
Productinformatie
| Merk | Stiebel Eltron |
| Model | HM |
| Categorie | Niet gecategoriseerd |
| Taal | Nederlands |
| Grootte | 4064 MB |







