Stiebel Eltron ET SBP handleiding
Handleiding
Je bekijkt pagina 15 van 32

15
Garantie
La garantie est à faire valoir dans le pays où
l’appareil a été acheté. A cette fin, il faut
prendre contact avec la filiale Stiebel Eltron
concernée, à défaut l’importateur agréé.
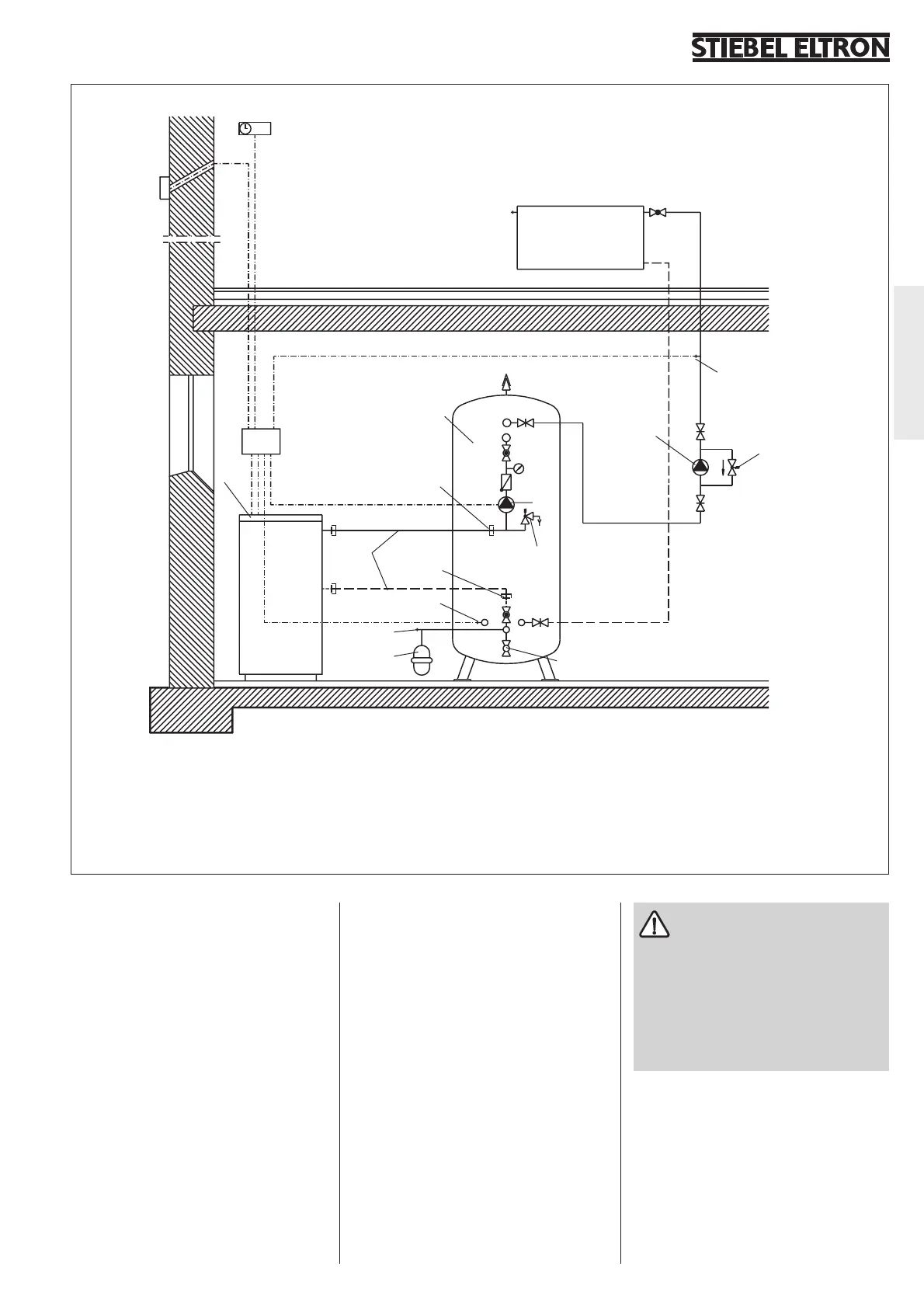
Fig. 7
Schéma de raccordement
1 Pompe à chaleur
2 Flexibles (départ et retour)
3 Régulateur de pompe à chaleur
4 Commande à distance de chauffage
(en option)
5 Ballon tampon
6 Purgeur rapide
7 Thermomanomètre
Environnement et
recyclage
Nous vous demandons de nous aider à
préserver l’environnement. Pour ce faire,
merci de vous débarrasser de l’emballage
conformément aux règles nationales relatives
au traitement des déchets.
Maintenance et contrôle
Soupape de sûreté
Lors de l’ouverture de la soupape de sûre-
té, l’eau de chauffage doit s’écouler à plein
jet. La soupape peut éventuellement gout-
ter lorsque son siège est encrassé.
Remède : après avoir fermé les vannes
d’arrêt à obturateur ou à bille, dévisser la
tête de la soupape, nettoyer le siège et, si
nécessaire, remplacer le joint.
Manomètre
La pression de service de l’installation de
chauffage doit être contrôlée à intervalles
réguliers. Si la pression de service chute, il
faut compléter le niveau d’eau dans
l’installation.
La pression de service de l’installation de
chauffage ne doit pas dépasser 2,5 bar de
surpression.
8 Soupape de sûreté
9 Raccord vissé G 1 ¼ " (départ PAC)
10 Raccord vissé G 1 ¼ " (retour PAC)
11 Circulateur PAC (pompe de charge de ballon)
12 Sonde de température retour PAC
13 Vase d’expansion (à fournir parl’installateur)
14 Vanne de remplissage et de vidange
(à fournir par l’installateur)
15 Circulateur chauffage (départ circuit de
chauffage)
16 Vanne de by-pass (pour installations de PAC)
17 Sonde de température - départ chauffage
18 Sonde de température extérieure
19 Sonde de température - départ PAC
20 Purgeur
Purge de l’installation
Lors du remplissage de l’installation, une gran-
de quantité d’air pénètre en même temps que
l’eau dans les conduites et les ballons.
En cas d’utilisation de purgeurs manuels, il est
donc nécessaire - notamment dans les pre-
miers temps suivant la mise en service - de
purger à nouveau le système tout en complé-
tant le niveau d’eau.
Le montage, les raccordements, la
maintenance ainsi que la première
mise en service sont à réaliser par un
installateur qualifié.
Le fabricant ne saurait être rendu respon-
sable des dommages causés par un appareil
qui n’aurait pas été installé ou utilisé
conformément à la notice de montage et
d’utilisation jointe à l’appareil.
19
3
6
5
9
20
13
14
2
1
17
15
16
18
12
10
6955.02
8
11
7
4
Français
Bekijk gratis de handleiding van Stiebel Eltron ET SBP, stel vragen en lees de antwoorden op veelvoorkomende problemen, of gebruik onze assistent om sneller informatie in de handleiding te vinden of uitleg te krijgen over specifieke functies.
Productinformatie
| Merk | Stiebel Eltron |
| Model | ET SBP |
| Categorie | Niet gecategoriseerd |
| Taal | Nederlands |
| Grootte | 4374 MB |







