Stiebel Eltron AVF 6 handleiding
Handleiding
Je bekijkt pagina 14 van 44

14
2 Montageaanwijzing voor de installateur
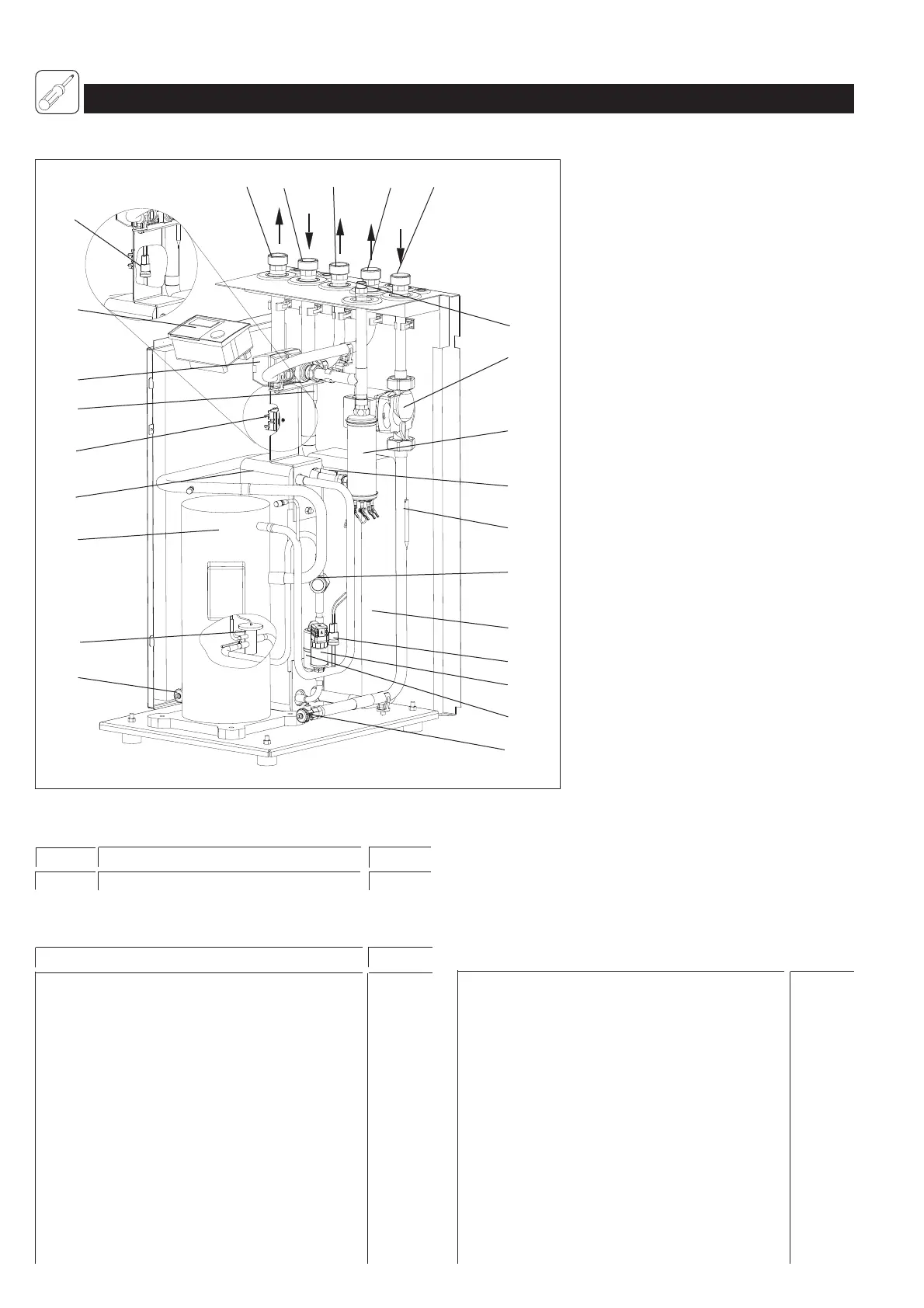
2.1 Opbouw van het toestel
2.3 Speciale accessoires
Bestelnr.
WPAC 1 (leverbaar vanaf 02-2006)
WPAB (Aanloopstroom begrenzer)
Drukslang, warmtegeïsoleerd G 1 1/4" x 1 m (DN 32) 07 44 14
Drukslang, warmtegeïsoleerd G 1 1/4" x 2 m (DN 32) 18 20 19
Drukslang, warmtegeïsoleerd G 1 1/4" x 5 m (DN 32) 18 20 20
Drukslang, warmtegeïsoleerd G 1 1/4" x 1 m (DN 32)
in te korten 18 56 47
Schroefaansluiting voor 5 m drukslang DN 32 07 06 92
Buffervat SBP 100 07 42 50
WPKI-H (voor buffervat SBP 100) 07 43 14
WPKI-V (voor buffervat SBP 100) 07 43 47
WPKI 3 (voor buffervat SBP 200, 400 en 700) 07 37 38
Buffervat SBP 200 E 18 54 58
Buffervat SBP 400 E 22 08 24
Buffervat SBP 700 E 18 54 59
Buffervat SBP 700 E SOL 18 54 60
WPSB 307 (Warmtepomp-birne-montageset) 07 42 01
WPSB 310 (Warmtepomp-birne-montageset) 07 42 02
WPSB 407 (Warmtepomp-birne-montageset) 07 42 03
WPSV 25-4 (Warmtepomp-birne-verdeler) 22 03 86
WPSV 32-4 (Warmtepomp-birne-verdeler) 22 03 87
WPSV 40-4 (Warmtepomp-birne-verdeler) 22 03 89
WPSV 25-6 (Warmtepomp-birne-verdeler) 22 03 90
WPSV 32-6 (Warmtepomp-birne-verdeler) 22 03 91
WPSV 40-6 (Warmtepomp-birne-verdeler) 22 03 92
Verwarmingsafstandsbediening FE 7 18 55 76
Verwarmingsafstandsbediening FEK 22 01 93
Aanlegvoeler AFV 6 16 53 41
Dompelvoeler TF 6 16 53 42
Concentraat warmtemedium 16 16 96
1 Brine-uittrede
2 Brine-intrede
3 Aanvoerleiding warmwaterboiler
4 Verwarmingsaanvoerleiding
5 Verwarmingsretourleiding
6 Aansluiting voor veiligheidsklep
(in de extra verpakking)
7 Verwarmingscirculatiepomp /
WP-circulatiepomp
8 STB elektr. naverwarming
9 Elektr. naverwarming (2e WB)
10 Temperatuurvoeler (aanvoer)
11 Temperatuurvoeler (retour)
12 Kijkglas
13 Verdamper
14 Hogedrukbegrenzing
15 Filterdroger
16 Vul- en aftapkraan (verwarming)
17 Vul- en aftapkraan (brine)
18 Expansieklep
19 Compressor
20 Condensor
21 Lagedrukbeveiligingsschakelaar
(
alleene bij WPF 1-fase)
21 Lagedruksensor (alleene bij WPF
3-fase)
22 Hogedruksensor
23 Temperatuurvoeler (brine-uittrede)
23 Temperatuurvoeler (brine-intrede,
alleene bij WPF 1-fase)
24 Omschakelklep
25 Warmtepompmanager
Abb. 3
2.2 Accessoires (in de extra verpakking)
Bestelnr.
1 Buitenvoeler AFS 2 16 53 39
C26_03_01_0277
12 3 4 5
6
7
9
11
13
14
15
16
17
18
19
20
22
23
24
25
8
10
12
21
Bekijk gratis de handleiding van Stiebel Eltron AVF 6, stel vragen en lees de antwoorden op veelvoorkomende problemen, of gebruik onze assistent om sneller informatie in de handleiding te vinden of uitleg te krijgen over specifieke functies.
Productinformatie
| Merk | Stiebel Eltron |
| Model | AVF 6 |
| Categorie | Niet gecategoriseerd |
| Taal | Nederlands |
| Grootte | 8033 MB |







