Speed Queen ADEE8BMB handleiding
Handleiding
Je bekijkt pagina 6 van 19

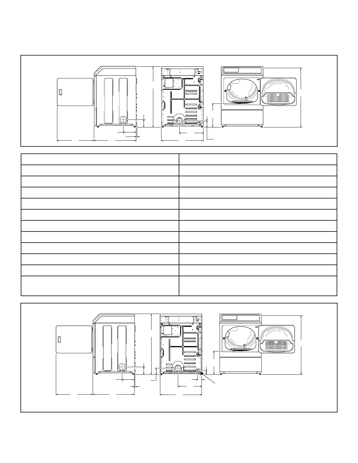
Dimensions
Electric Models
DRY2638N_SVG
JK
I
H
G
F
E
D
C
B
A
A * 1027 mm [40.42 in.]
B * 1006 mm [39.61 in.]
C * 392 mm [15.44 in.]
D * 102 mm [4 in.]
E 391 mm [15.4 in.]
F 683 mm [26.875 in.]
G * 114 mm [4.5 in.]
H 10 mm [0.4 in.]
I 203 mm [8 in.]
J 711 mm [28 in.]
K 597 mm [23.5 in.]
NOTE: Exhaust openings are 102 mm [4 inch] metal
ducting.
* With leveling legs turned into base.
Gas Models
DRY2639N_SVG
F
E
D
C
B
A
J
K
M L
I
H
G
1
1. 3/8 in. NPT Gas Connection
Dimensions
©
Copyright, Alliance Laundry Systems LLC -
DO NOT COPY or TRANSMIT
6 Part No. D514685R5
Bekijk gratis de handleiding van Speed Queen ADEE8BMB, stel vragen en lees de antwoorden op veelvoorkomende problemen, of gebruik onze assistent om sneller informatie in de handleiding te vinden of uitleg te krijgen over specifieke functies.
Productinformatie
Merk | Speed Queen |
Model | ADEE8BMB |
Categorie | Wasdroger |
Taal | Nederlands |
Grootte | 4050 MB |