Sony ZRD-VS25FM handleiding
Handleiding
Je bekijkt pagina 46 van 100

ES
46
Códigos de error / Limpieza y almacenamiento / Especificaciones
Códigos de error
Consulte las especificaciones del sistema de
controlador de visualización correspondiente.
Limpieza y
almacenamiento
No moje la superficie de los Display Cabinets.
Limpieza diaria
Para limpiar la superficie del Display Cabinet,
aplique con suavidad
*2
*3
el paño recomendado
*1
.
*1 Paño recomendado: paño de limpieza savina
MX,
KB Seiren Co.
*2 Aplique el paño en gestos horizontales en una
m
is
ma dirección.
*3 Si quedan restos, elimínelos con la cara no
utiliza
da
del paño.
Almacenamiento (para el transporte)
• Asegúrese de que los Display Cabinets estén
completamente secos antes de embalarlos.
• Almacene los Display Cabinets en ambientes
se
co
s y bien ventilados.
Formatos de señal
El formato de señal se corresponde con las
especificaciones del controlador correspondiente.
Especificaciones
Resolución H 200 puntos × V 200 puntos
Distancia entre píxeles LED
2,5 mm
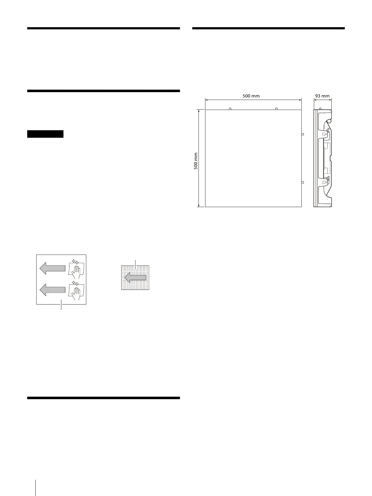
Dimensiones 500 × 500 × 93 mm (An/Al/Pr)
Peso Aprox. 10 kg
Entrada/salida Conector PWR IN (entrada de
alimentación de CA) (1)
Conector PWR OUT (salida de
alimentación de CA) (1)
Conector DATA (2)
Alimentación Entrada: de 100 V a 240 V CA,
50/60 Hz, 11,4 A
Salida: de 100 V a 240 V CA,
50/60 Hz, 9,5 A
Condiciones de funcionamiento
Temperatura De 0 °C a 40 °C
Humedad Del 20% al 80% (sin condensación)
Condiciones de almacenamiento y transporte
Temperatura De –20 °C a +60 °C
Humedad Del 20% al 80% (sin condensación)
Accesorios incluidos
Manual de instrucciones (1)
El diseño y las especificaciones están sujetos a
modificaciones sin previo aviso.
Precaución
Aplicar en horizontal
en una dirección
Display Cabinet
Paño
Si aplica con la textura del paño
en dirección vertical es más fácil
eliminar las manchas.
Bekijk gratis de handleiding van Sony ZRD-VS25FM, stel vragen en lees de antwoorden op veelvoorkomende problemen, of gebruik onze assistent om sneller informatie in de handleiding te vinden of uitleg te krijgen over specifieke functies.
Productinformatie
| Merk | Sony |
| Model | ZRD-VS25FM |
| Categorie | Niet gecategoriseerd |
| Taal | Nederlands |
| Grootte | 14863 MB |







