Handleiding
Je bekijkt pagina 44 van 46

44
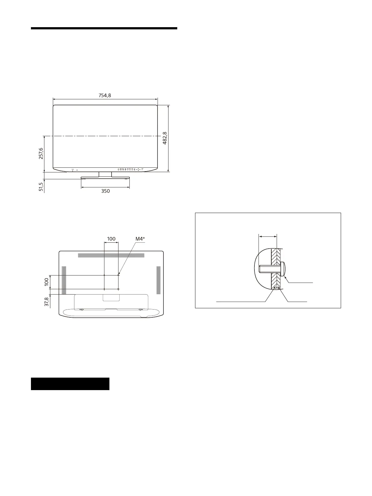
Διαστάσεις
Πρόσοψη
Μαζί με την προαιρετική βάση SU-600MD
Μονάδα: χλ
στ.
Πίσω
Μονάδα: χλστ.
* Οι βί
δες είναι ήδη τοποθετημένες.
Τοποθέτηση της μονάδας σε πλαίσιο
τοποθέτησης σε τοίχο ή βραχίονα στήριξης
Ρυθμίστε οπωσδήποτε τη ροπή σύσφιξης
στην ακόλουθη τιμή.
Τιμή ρο
πής: 1,2±0,1 N·m
Βεβαιωθείτε ότι η ροπή σύσφιξης έχει
ρυθμιστεί σε αυτήν την τιμή. Αν η τιμή ροπής
είναι ακατάλληλη, μπορεί να προκληθεί
ζημιά στο τοποθετημένο τμήμα της οθόνης ή
οι βίδες μπορεί να χαλαρώσουν και, στη
χειρότερη περίπτωση, ενδέχεται να
προκληθεί τραυματισμός ή ζημιά στη
μονάδα λόγω πτώσης της μονάδας.
Οι βίδες που παρέχονται (ήδη τοποθετημένες
στην πίσω πλευρά) εί
ναι υποστηριζόμενες
βάσεις πάχους 2 έως 5 χλστ. Κατά τη
στερέωση σε άλλα αντικείμενα,
συμβουλευτείτε την εικόνα και
χρησιμοποιήστε τις βίδες που συνιστώνται
για το αντικείμενο που θα προσαρτηθεί.
Αν ασκηθεί υπερβολική δύναμη κατά τη
στερέωση της μονάδας σε αντικείμενα, όπως
κινούμενους βραχίονες στήριξης, μπορεί να
προκληθεί ζημιά στο τοποθετημένο τμήμα
και, στη χειρότερη περίπτωση, ενδέχεται να
προκληθεί τραυματισμός ή ζημιά στη
μονάδα λόγω πτώσης της μονάδας. Για να
χρησιμοποιήσετε την οθόνη με τον κινούμενο
βραχίονα στήριξης, κρατήστε τη λαβή του
κι
νούμενου βραχίονα για να μετακινήσετε
την οθόνη και να αποφύγετε την άσκηση
υπερβολικής δύναμης στο τοποθετημένο
τμήμα.
Μονάδα: χλ
στ.
Προειδοποίηση
* Μήκος βιδών M4 (4)
Περίβλημα οθόνης
Συνδεδεμένο
αντικείμενο
7 έως 10
Βίδα M4
Bekijk gratis de handleiding van Sony LMD-43M1MD, stel vragen en lees de antwoorden op veelvoorkomende problemen, of gebruik onze assistent om sneller informatie in de handleiding te vinden of uitleg te krijgen over specifieke functies.
Productinformatie
| Merk | Sony |
| Model | LMD-43M1MD |
| Categorie | Monitor |
| Taal | Nederlands |
| Grootte | 6506 MB |







