Handleiding
Je bekijkt pagina 48 van 100

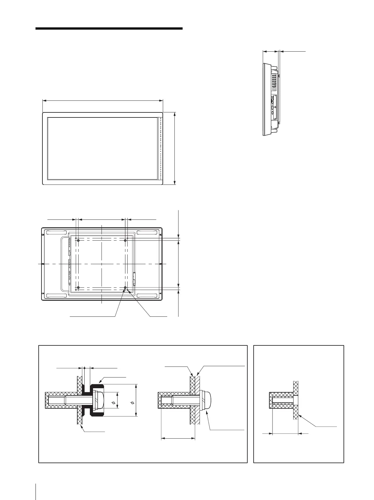
寸法図
48
寸法図
LMD-4251TD
前面
後面
側面
質量
約 20.8kg(入力アダプター未装着時)
約 21.3kg(BKM-229X × 2 装着時)
CONTROL
VOLUME
CONTRAST
PHASE
CHROMA
BRIGHT
MENU
ENTER
RETURN
Y/C
A-1
A-2
B-1
B-2
F1
F2
F3
F4
RGB
COMPOSITE
COMPONENT
DVI
HD15
1,027
616
400 2020
40020
(4-M6) 4-M5
20
4- フック
PARALLEL
REMOTE
DVI-D
HD15
OPTION B
IN G/Y OUT
IN B/P
B OUT
IN R/P
R OUT
IN
EXT
SYNC
OUT
IN
AUDIO
R
OUT
IN
Y/C
OUT
IN
COMPOSITE
OUT
SERIAL REMOTE
OPTION A
130 13.6
単位:mm
1.5
10
20
3.4
M6
フック/ M6
フック
フックが取り付けられているとき フックを取りはずしたとき
本機 取り付け物
本機
6〜20
ネジ *
1
*
1
フックからはずした M6 ネジを
使用してください。
抜けどめ用
M5
6〜15
本機
Bekijk gratis de handleiding van Sony LMD-2451TD, stel vragen en lees de antwoorden op veelvoorkomende problemen, of gebruik onze assistent om sneller informatie in de handleiding te vinden of uitleg te krijgen over specifieke functies.
Productinformatie
| Merk | Sony |
| Model | LMD-2451TD |
| Categorie | Monitor |
| Taal | Nederlands |
| Grootte | 20038 MB |
Caratteristiche Prodotto
| Kleur van het product | Zwart |
| LED-indicatoren | Stroom |
| Bluetooth | Nee |
| Aan/uitschakelaar | Ja |
| Beeldscherm | LCD |







