Sonnenkonig GLASKON 1000 handleiding
Handleiding
Je bekijkt pagina 20 van 60

FR
20
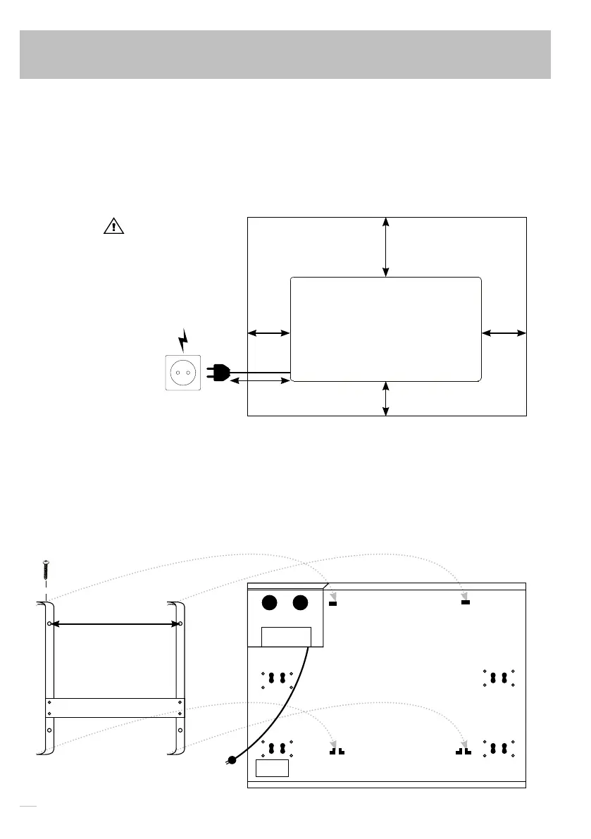
08 - MONTAGE MURAL
Assurez-vous que vous respectez les distances minimales requises. Utilisez uniquement des vis qui supportent le
poids de l‘appareil et qui sont conçues pour le mur concerné. Vérifiez également qu‘il y a une prise de courant à
proximité immédiate pour brancher l‘appareil. Cet appareil de chauffage doit impérativement être installé sur les
quatre côtés de l‘appareil de chauffage en respectant les distances minimales requises :
Retirez d‘abord le support mural du dos de l‘appareil. Desserrez les vis qui se trouvent sur la partie supérieure
des barres verticales du support mural. Retirez ensuite la barre supérieure en appuyant fermement sur les deux
parties supérieures qui sont fendues dans le boîtier arrière. Faites glisser le support mural vers le bas pour le
retirer du boîtier arrière.
ATTENTION!
Dans la salle de bain, suspendre à
au moins 1000 mm de la douche.
Dans la salle de bain, à au moins
250 mm du sol
A installer uniquement dans la
maison ou à l‘intérieur
Dans un courant d‘air
qui pourrait influencer
le réglage du régulateur
L1
min. mm
min. mm
min.
mm
min.
mm
max.
mm
Bekijk gratis de handleiding van Sonnenkonig GLASKON 1000, stel vragen en lees de antwoorden op veelvoorkomende problemen, of gebruik onze assistent om sneller informatie in de handleiding te vinden of uitleg te krijgen over specifieke functies.
Productinformatie
| Merk | Sonnenkonig |
| Model | GLASKON 1000 |
| Categorie | Niet gecategoriseerd |
| Taal | Nederlands |
| Grootte | 5130 MB |







