Sime RS Mk II handleiding
Handleiding
Je bekijkt pagina 25 van 76

25
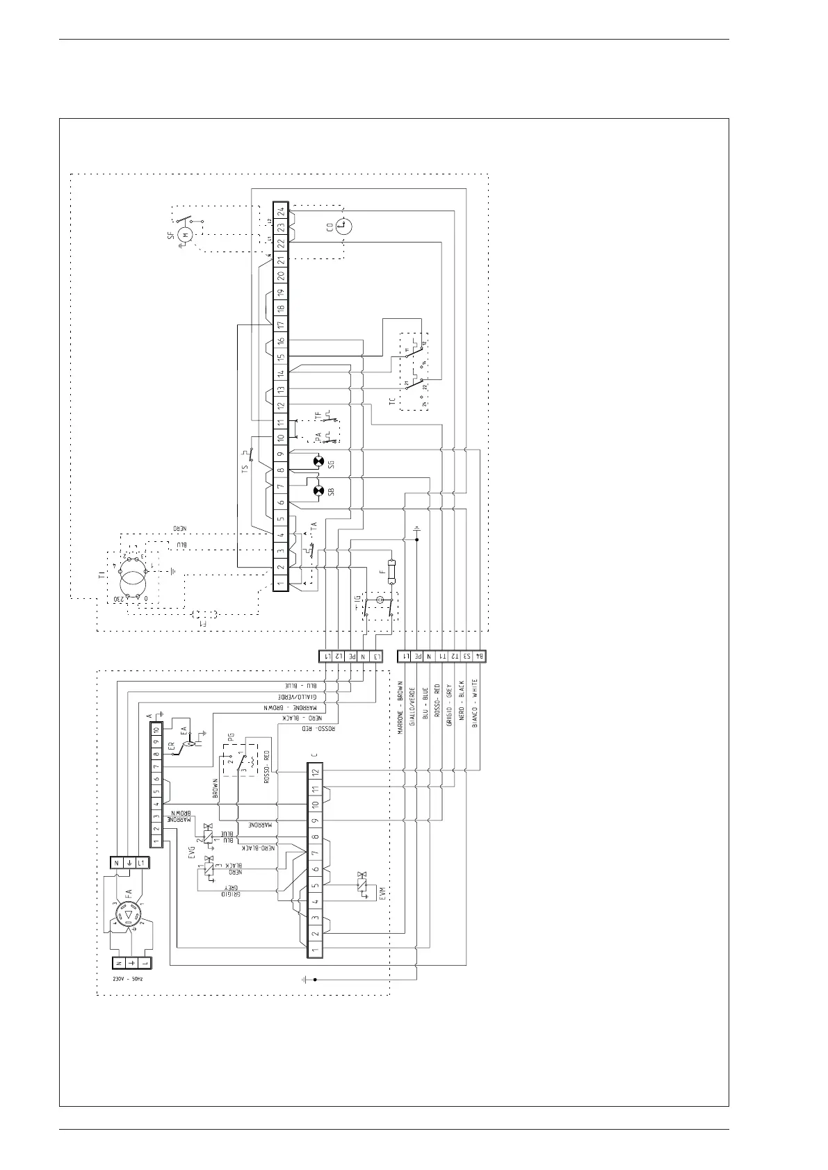
Fig. 13
LEYENDA
SB Luz señalización bloque caja de control de llama
PG Presostato de gas de minima
EVG1 Primera electroválvula de gas
F Fusible T 4A
ER Electrodo de detección
EA Electrodo de encendido
TC Termóstato de regulación 2 etapas
IG Interruptor general
SG Espía de señalización presión gas
TS Termóstato de seguridad
A Caja de control de llama SM 191.1
PA Presóstato de agua (no suministrado)
EVG2 Segunda electroválvula gas
FA Filtro anti-interferencia
TF Termóstato de humos (solo para POLONIA)
TA Termóstato ambiente
TI Trasformador de aislamiento (solo para BELGICA)
F1 Fusible F 800mA (solo para BELGICA)
SF Cierre de humos (no suministrado)
CO Contador de horas
EVM Válvula de mínima
NOTA: Para conectar el TA quite el puente de los bornes 1-4.
Conectando el cierre de humos (SF) quite el puente entre los
bornes 22-23.
Al conectar el transformador de aislamiento (TI), solo para
BELGICA, hay que quitar los puentes 1-4 y 2-3.
Bekijk gratis de handleiding van Sime RS Mk II, stel vragen en lees de antwoorden op veelvoorkomende problemen, of gebruik onze assistent om sneller informatie in de handleiding te vinden of uitleg te krijgen over specifieke functies.
Productinformatie
Merk | Sime |
Model | RS Mk II |
Categorie | Niet gecategoriseerd |
Taal | Nederlands |
Grootte | 12893 MB |