Sime Murelle Equipe 140 BOX ErP handleiding
Handleiding
Je bekijkt pagina 7 van 60

7
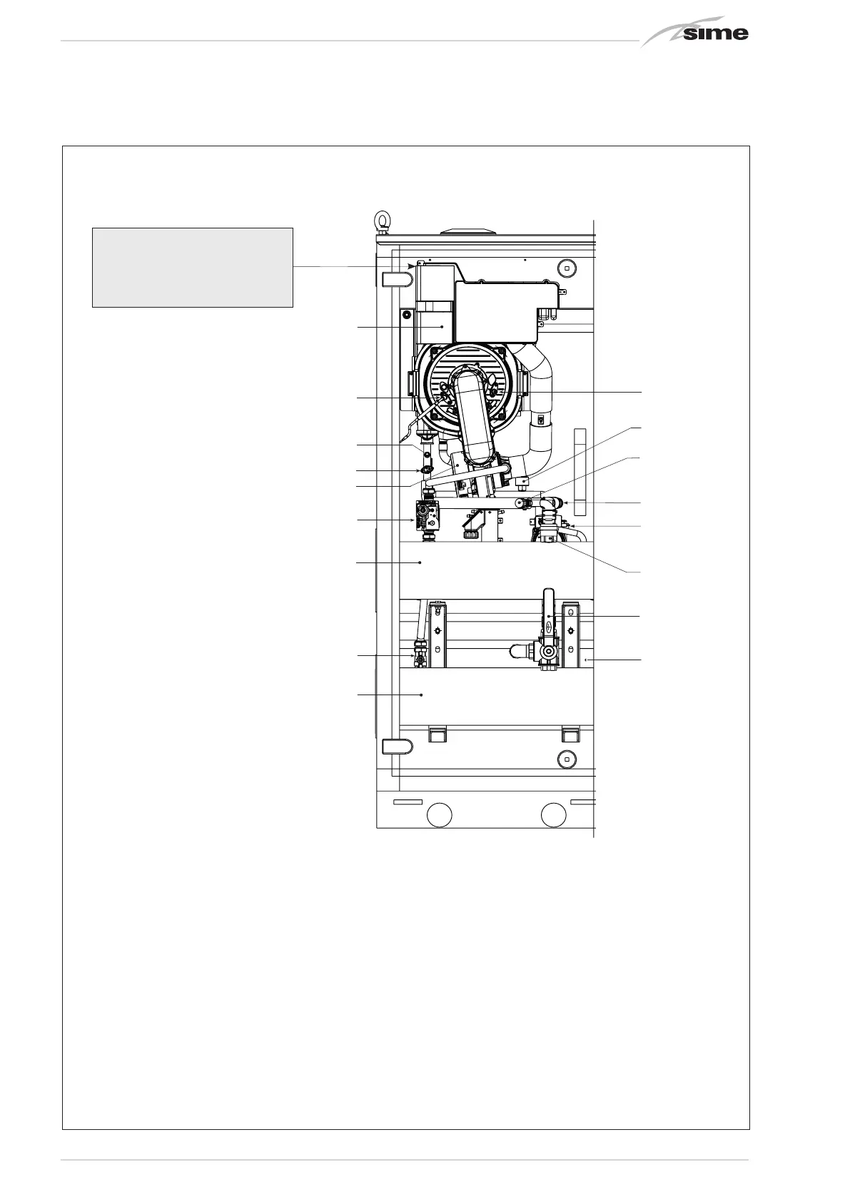
1.5 MAIN COMPONENTS (fig. 3)
Fig. 3
Code 8111235
Model MURELLE EQUIPE 140 BOX ErP
Serial n. 9999999999
PAR 1 = 60 (G20) / 62 (G31)
PAR 2 = 9
KEY
1 System return manifold
2 Gas isolation valve
3 System supply manifold
4 Gas valve
5 Fan
6 Safety thermostat 100°C
7 Heating supply probe (SM)
8 Ignition electrode
9 Control panel
10 Ionisation electrode
11 Pressure transducer
12 Single module drain
13 Safety valve 3.5 bar
14 Pump high efficiency
15 Non return valve
16 3-way isolation/drain valve
17 Gas manifold
CAUTION: To access the control panel (9) remove the two screws which
secure it to the support bracket and turn the panel downwards.
Gas
1
2
3
4
5
6
7
8
9
10
11
12
13
14
15
16
17
Bekijk gratis de handleiding van Sime Murelle Equipe 140 BOX ErP, stel vragen en lees de antwoorden op veelvoorkomende problemen, of gebruik onze assistent om sneller informatie in de handleiding te vinden of uitleg te krijgen over specifieke functies.
Productinformatie
| Merk | Sime |
| Model | Murelle Equipe 140 BOX ErP |
| Categorie | Niet gecategoriseerd |
| Taal | Nederlands |
| Grootte | 9188 MB |







