Handleiding
Je bekijkt pagina 61 van 148

13
FRANÇAIS
REMARQUES
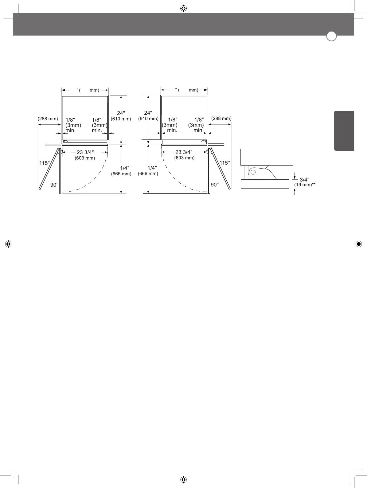
Dégagements pour l’ouverture de la porte
• L’installation doit prévoir des dégagements pour les murs adjacents ou les armoires. Les appareils
sont dotés de butées de porte à deux positions.
• L’ouverture de porte à 115° réglée en usine peut être réglée à 90° si le dégagement entre l’appareil
et les armoires ou les murs adjacents est limité.
Dégagements de la poignée de porte
La profondeur de la poignée de porte doit être ajoutée à la dimension de l’appareil à l’endroit indiqué
afin de déterminer les dégagements totaux nécessaires pour les armoires ou les murs adjacents.
Ce dégagement peut varier selon la poignée personnalisée utilisée. Si vous utilisez les poignées
offertes par Signature Kitchen Suite ou l’ensemble de panneau de porte en acier inoxydable de
Signature Kitchen Suite comprenant des poignées (accessoires offerts en option), le dégagement de
la poignée de porte lorsque la porte est ouverte à 115° est de 14 po (356 mm).
DÉGAGEMENTS POUR L’INSTALLATION
TOP VIEW
26
24
11 3/8"*
11 3/8"*
610
26
24
610
**
Varies depending on the
thickness of the custom
cabinet panel. The door panels in
the optional Signature Kitchen Suite
stainless steel door panel kit are
3/4" (19 mm) thick.
Door handle must be added
to this dimension.
*
SKSCF2401P SKSCR2401P
SKSCW241RP
Bekijk gratis de handleiding van Signature SKSCW241RP, stel vragen en lees de antwoorden op veelvoorkomende problemen, of gebruik onze assistent om sneller informatie in de handleiding te vinden of uitleg te krijgen over specifieke functies.
Productinformatie
| Merk | Signature |
| Model | SKSCW241RP |
| Categorie | Koelkast |
| Taal | Nederlands |
| Grootte | 15733 MB |







