Handleiding
Je bekijkt pagina 15 van 148

15
ENGLISH
NOTE
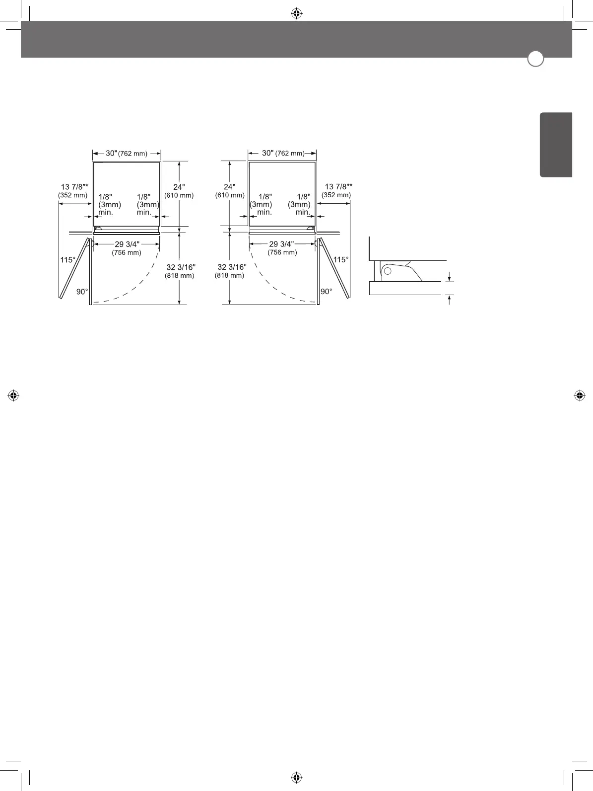
Door Swing Clearances
The installation must allow for clearances to adjacent walls or cabinets. This freezer / refrigerator
is equipped with a 2-position door stop. The factory-set 115° door swing can be adjusted to 90° if
clearance to adjacent cabinets or walls is restricted.
Door Handle Clearances
The door handle depth must be added to the dimension where noted to determine the total
clearances required from adjacent cabinets or walls. This clearance will vary depending on the
custom handle used. When using Signature Kitchen Suite handles or the Signature Kitchen Suite
stainless steel door panel kit with handles (optional accessories), the door handle clearance with the
door open 115° is 16" (406 mm).
INSTALLATION CLEARANCES
TOP VIEW
3/4"
(19 mm)**
**
Varies depending on the
thickness of the custom
cabinet panel. The door panels in the optional
Signature Kitchen Suite stainless steel door
panel kit are 3/4" (19 mm) thick.
Door handle must be added
to this dimension.
*
SKSCF3001P
SKSCR3001P
Bekijk gratis de handleiding van Signature SKSCW241RP, stel vragen en lees de antwoorden op veelvoorkomende problemen, of gebruik onze assistent om sneller informatie in de handleiding te vinden of uitleg te krijgen over specifieke functies.
Productinformatie
| Merk | Signature |
| Model | SKSCW241RP |
| Categorie | Koelkast |
| Taal | Nederlands |
| Grootte | 15733 MB |







