Handleiding
Je bekijkt pagina 27 van 148

27
ENGLISH
23
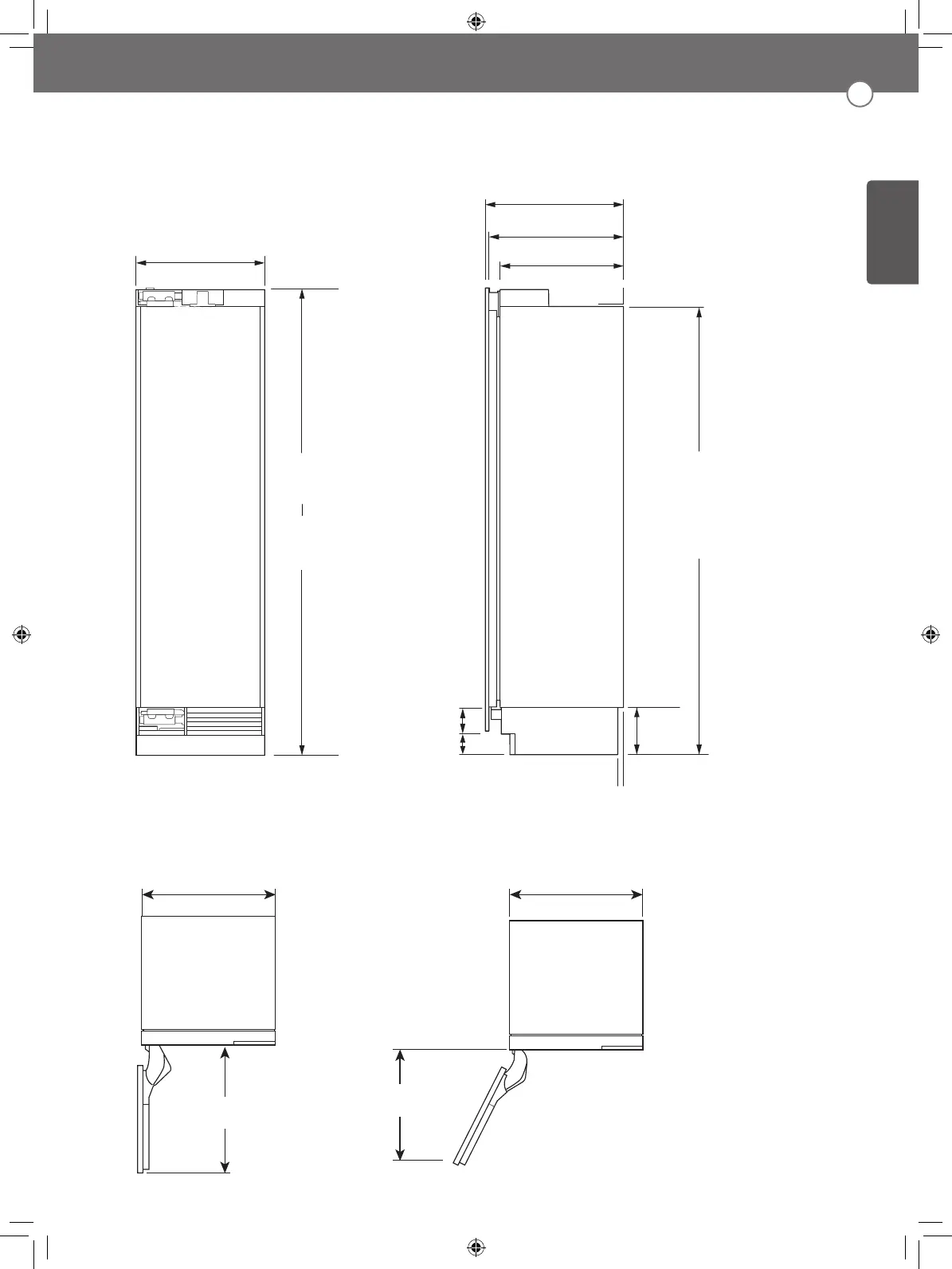
3
/4"
(603 mm)
26
1
/2"
(659 mm)
24 3/4"*
22"***
23 7/8"**
(629 mm)
(558 mm)
(607 mm)
4"
5"
(127 mm)
(102 mm)
Depth with 3/4" (19 mm) door panel
Depth with door (no panel)
Unit depth without door
*
**
***
Unit width
without
door panel
9"
(229 mm)
3/4"
(19 mm)
80 9/16"
(2046 mm)
min.
81 9/16"
(2072 mm)
max.
23
3
/4"
(603 mm)
28
1
/8"
(713 mm)
23 3/4"
(603 mm)
83 1/2"
(2121 mm)
min.
84 1/2"
(2146 mm)
max.
Unit width
without
door panel
Unit width
without
door panel
TOP VIEW
DOOR OPEN 115˚
SIDE VIEW
FRONT VIEW
TOP VIEW
DOOR OPEN 90˚
24" Freezer / Refrigerator / Wine Column
Bekijk gratis de handleiding van Signature SKSCW181RP, stel vragen en lees de antwoorden op veelvoorkomende problemen, of gebruik onze assistent om sneller informatie in de handleiding te vinden of uitleg te krijgen over specifieke functies.
Productinformatie
| Merk | Signature |
| Model | SKSCW181RP |
| Categorie | Koelkast |
| Taal | Nederlands |
| Grootte | 15733 MB |







