Handleiding
Je bekijkt pagina 109 van 148

13
ESPAÑOL
NOTA
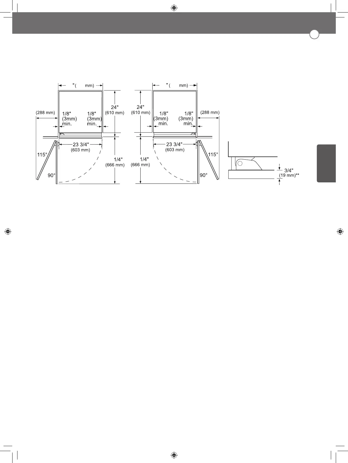
Espacios para la apertura de las puertas
• La instalación debe dejar espacios con respecto a las paredes o gabinetes adyacentes. Estos
electrodomésticos están equipados con topes de puerta de 2 posiciones.
• El ángulo de apertura de la puerta de 115° configurado de fábrica se puede ajustar a 90° si el
espacio se encuentra limitado por gabinetes o paredes adyacentes.
Espacios para las manijas de las puertas
En las dimensiones donde se lo indica, debe sumarse la profundidad de la manija de la puerta a
fin de determinar el espacio libre total requerido con respecto a gabinetes o paredes adyacentes.
Este espacio variará dependiendo de la manija personalizada utilizada. Cuando utilice las manijas
Signature Kitchen Suite o el kit de paneles de puerta de acero inoxidable Signature Kitchen Suite
con manijas (accesorios opcionales), el espacio libre para las manijas de la puerta con la puerta
abierta a 115 ° es de 14" (356 mm).
ESPACIOS LIBRES EN LA INSTALACIÓN
TOP VIEW
26
24
11 3/8"*
11 3/8"*
610
26
24
610
**
Varies depending on the
thickness of the custom
cabinet panel. The door panels in
the optional Signature Kitchen Suite
stainless steel door panel kit are
3/4" (19 mm) thick.
Door handle must be added
to this dimension.
*
SKSCF2401P SKSCR2401P
SKSCW241RP
Bekijk gratis de handleiding van Signature SKSCW181RP, stel vragen en lees de antwoorden op veelvoorkomende problemen, of gebruik onze assistent om sneller informatie in de handleiding te vinden of uitleg te krijgen over specifieke functies.
Productinformatie
| Merk | Signature |
| Model | SKSCW181RP |
| Categorie | Koelkast |
| Taal | Nederlands |
| Grootte | 15733 MB |







